Javascript is vital for the advanced features in this website such as Property Search. Please enable or upgrade your browser

Site 10, F12 5th Street

Rivenwood, Newtownards, BT23

Asking Price £344,950

Site 10, F12 5th Street

Rivenwood, Newtownards, BT23

Asking Price £344,950
Status For Sale
Asking Price £344,950
Bedrooms 3
EPC Rating 0/0
Stamp Duty £ / £*
Calculate Stamp Duty
*Higher amount applies when purchasing as buy to let
or as an additional property
Status For Sale
Asking Price £344,950
Bedrooms 3
EPC Rating 0/0 - Download
Stamp Duty £ / £*
*Higher amount applies when purchasing as buy to let
or as an additional property

Key Features

TURNKEY SPECIFICATION
KITCHEN
Contemporary Kitchens.
Choice of kitchen colour.
Quartz worktops as standard.
Integrated branded electrical appliances to include gas hob, microwave and electric oven, extractor unit, fridge/freezer and dishwasher.
UTILITY
Integrated branded electrical
appliances to include gas hob,
microwave and electric oven, extractor unit, fridge/freezer and dishwasher.
Combination washer/dryer.
BATHROOMS
Contemporary white sanitary ware.
Heated towel rail in bathroom and en suite.
Full height tiling to shower enclosures.
Splash back tiling to bathroom, en suite and downstairs cloakroom basins.
SMART TECHNOLOGY
Smart phone enabled heating system with digital thermostats.
Ring video doorbells.
Wiring for EV car charger.
ELECTRICAL
Superfast Fibreoptic Broadband, FTTP with speeds of up to 900mbps.
Smoke, heat and carbon monoxide detectors.
Comprehensive range of electrical sockets.
Connection sockets for BT and TV.
Cabling for digital, SKY TV and Virgin Media.
Zoned security alarm.
EXTERNAL FEATURES
A mixture of white render and timber effect maintenance free cladding.
Maintenance free PVC energy efficient double glazing with lockable system.
Bitmac driveways.
Landscaped gardens with paved patio area.
Timber fencing to rear boundaries where appropriate.
Feature external lighting to front door and rear patio.
Outdoor tap.
HEATING
High efficiency gas combination boiler.
ENERGY EFFICIENCY
6 inset solar panels installed flush with the roof tiles.
Solis Cloud app for monitoring solar performance.
5kW battery storage.
High level of insulation incorporated in floors, walls and roofs.
All houses are constructed to provide a high level of air tightness in order to retain heat.
FLOORING
Carpeting provided throughout all bedrooms, lounges, stairs and landings.
Wood laminate LVT flooring for entrance hall, kitchen and living/dining areas.
Tiles to bathroom floors, showers and splash backs. Tiles to cloakroom and utility floors (where applicable).
SELECTIONS
All selections to be made from the builder’s nominated suppliers only.
All selections are from a pre-selected range and are subject to change.
WARRANTY
NHBC 10 year buildmark warranty.

Description

FIFTH STREET RIVENWOOD

To live here is to experience a different rhythm, one shaped by quiet elegance and deliberate design. As you enter along the tree-lined avenue, there’s an immediate sense of arrival. Homes are thoughtfully positioned, their architecture composed with light, proportion and materiality in mind. This is a place where mornings begin in calm and evenings close in comfort; where space is generous, details are crafted, and every element feels considered. It’s not just a premium address, it’s a place apart.

DELIBERATE DESIGN

A home that is designed better and built better will give you a better life. You’re not just buying a home, you’re buying the promise of a happier, healthier lifestyle.

EXPERIENCE A DIFFERENT RHYTHM

Positioned close to the beautiful shoreline of Strangford Lough, Rivenwood is located in one of the most alluring areas of County Down. A unique combination of stunning countryside and close proximity to a series of thriving towns and Belfast City, makes Newtownards the perfect place to make your home.

OUR HOMES DON'T JUST LOOK GOOD, THEY DO GOOD

Designing our homes from the inside out is the difference because it puts the buyer and their family at the centre, not the restrictions of a traditional mindset.
We are passionate about good design and believe that it has the power to enhance lives. It delights on a daily basis. It makes mundane stuff, less so. It brings people together. It helps kids thrive. It reduces stress. It makes living in a Fraser home an absolute pleasure. Now, and for generations to come.

BEAUTIFUL AND LAYERED SPACES

Contemporary design incorporates a blend of textures and soft hues to infuse sleek, modern decor with a sense of warmth and invitation. It places a strong emphasis on clean lines, utility, and simple furnishings that seamlessly combine functionality and aesthetics. This approach is celebrated for its carefully curated colour palettes, cosy accents, and modern furniture. Designs often play with natural light which creates a warm, comfortable atmosphere in your living spaces.

HOMEOWNER BENEFITS

Reclaim your energy independence by reducing your reliance on the grid. Your solar PV system provides clean, free electricity to your home, reducing your energy bills and future proofing you from continually rising energy prices. We’re also allowing provision for EV charging.

SMART SECURITY

So you can protect what matters most, we’re installing Ring Doorbells in every home. See, hear and speak to visitors from anywhere with this Video Doorbell. Get instant notifications on your phone and tablet, customise your motion settings and conveniently stay connected to home, no matter where you are.

SMART ENERGY EFFICIENCY

You don’t have to be home to have control. As standard in every home, we are installing smart phone compatible digital thermostats **. Smart profiles enable youto program time and temperature settings and then apply them to a number of zones, automatically turning the heating off when you leave and back on when you return. CO2 emissions are much less too. A range of active energy management measures have been incorporated to improve your home’s energy efficiency. With a high level of insulation and increased air tightness, our homes prevent heat loss and ensure that the heat generated remains in the property.
**Smart hub not fitted as standard.

FIND A HOME FOR YOU

Fifth Street homes are thoughtfully positioned, their architecture composed with light, proportion and materiality in mind. This is a place where mornings begin in calm and evenings close in comfort; where space is generous, details are crafted, and every element feels considered.

MAKING TURNKEY SIMPLE
This turnkey development allows you to be in control of the design of your home. You decide your desired floor type, tile choice and kitchen detailing, making your home unique to you.

CREATE SOMETHING BEAUTIFUL
The contemporary luxury kitchen is the heart of the home. Make it a space you love by choosing from a range of colours for your units and worktops.

STEP BY STEP
Be proud of every inch of your interior. Pick the flooring and tiling style that suits you from our preselected range.

MAKE IT YOURS
All walls and skirting boards will be painted white, giving you the final say over the internal finishes
of your new home. And, as seen in our show home, internal doors are painted black with black ironmongery and feature black stair spindles.

Rooms

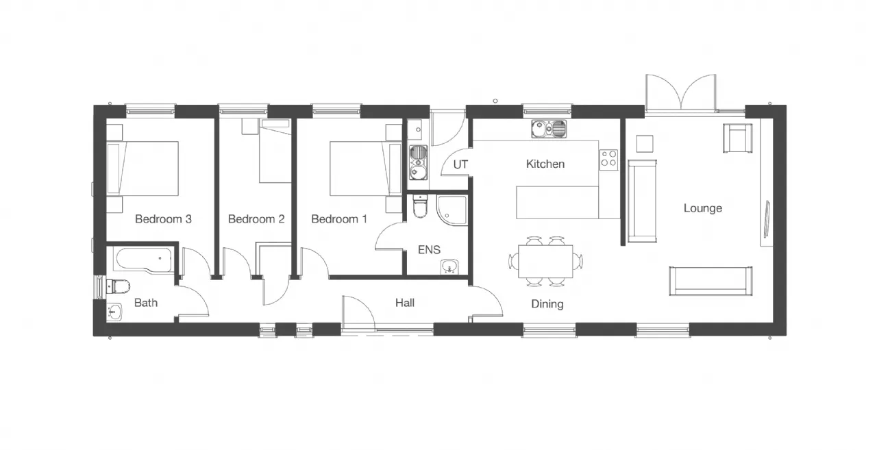
KITCHEN/DINING: 18'8" x 13'5" (5.7m x 4.1m)
UTILITY ROOM: 6'7" x 5'7" (2.0m x 1.7m)
LOUNGE: 18'8" x 13'5" (5.7m x 4.1m)
BEDROOM 1: 14'5" x 9'6" (4.4m x 2.9m)
ENSUITE: 7'3" x 5'7" (2.2m x 1.7m)
BEDROOM 2: 11'2" x 9'10" (3.4m x 3.0m)
BEDROOM 3: 11'2" x 6'7" (3.4m x 2.0m)
BATHROOM: 7'3" x 7'3" (2.2m x 2.2m)
Contact Andrea White Newtownards +44 28 91800700 Email Enquiry
Contact Anna Perry Newtownards +44 28 9182 4401 Email Enquiry

Location

Show Map
What's Near by?

Click below to see on map

Mortgage Calculator

Monthly Repayments Need Mortgage Advice?

Disclaimer: The following calculations act as a guide only, and are based on a typical repayment mortgage model. Financial decisions should not be made based on these calculations and accuracy is not guaranteed. Always seek professional advice before making any financial decisions.

Request More Information

Requesting Info about...
Site 10, F12 5th Street, Rivenwood, Newtownards, BT23 Site 10, F12  5th Street, Rivenwood, Newtownards, BT23

By registering your interest, you acknowledge our Privacy Policy and Terms & Conditions

Value My Property

Do you have a property to sell?
If you have a property to sell we can arrange for one of our experienced valuers to provide you with a no-obligation valuation.

Please complete the form opposite and a member of our team will get in touch to discuss your requirements.

Financial Services Enquiry

We can help with mortgages and insurance
John Minnis work with independent financial advisers that offer private mortgage advice and insurance options.

If you would like more information about what we can offer please complete the form opposite and a member of our team will get in touch to discuss your requirements.

Arrange a Viewing

Arrange a viewing for...
Site 10, F12 5th Street, Rivenwood, Newtownards, BT23 Site 10, F12  5th Street, Rivenwood, Newtownards, BT23

Make an Offer

Make an Offer for...
Site 10, F12 5th Street, Rivenwood, Newtownards, BT23 HLW260098
Loading...