Javascript is vital for the advanced features in this website such as Property Search. Please enable or upgrade your browser

West View House, Unit 28

Milltown Industrial Estate, Greenan Road, BT34 2PT

Asking Price £594,950

West View House, Unit 28

Milltown Industrial Estate, Greenan Road, BT34 2PT

Asking Price £594,950
Status For Sale
Asking Price £594,950
EPC Rating 0/0
Stamp Duty £ / £*
Calculate Stamp Duty
*Higher amount applies when purchasing as buy to let
or as an additional property
Status For Sale
Asking Price £594,950
EPC Rating 0/0 - Download
Stamp Duty £ / £*
*Higher amount applies when purchasing as buy to let
or as an additional property

Key Features

We are advised that the NAV is £4,100
Estimated Rates Payable 24/25: TBC

Description

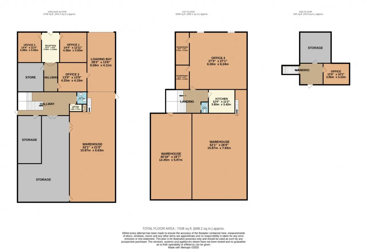
An excellent opportunity to acquire West House View, a substantial office and commercial premises extending to approximately 7,407 sq ft, located within the well-established Milltown Industrial Estate in Warrenpoint, Co. Down. Strategically positioned just off the A2 dual carriageway, this prominent property enjoys excellent connectivity to Warrenpoint Harbour (just minutes away) and Newry City, providing swift access to both regional and cross-border transport routes. Its location makes it ideal for businesses seeking efficient distribution links and strong commercial visibility in South Down.
The property offers significant potential for a variety of commercial uses or future redevelopment, subject to the necessary planning and statutory consents. With rising demand for adaptable business space in the area, West House View is well-suited for a range of occupiers – from growing local enterprises to larger operators looking to expand. Surrounded by established businesses and benefitting from excellent transport infrastructure, this is a rare opportunity to secure a high-quality premises in one of the region’s most strategically located industrial and commercial zones.


West House View benefits from an exceptional location within Milltown Industrial Estate in Warrenpoint, placing it at the heart of one of Northern Ireland’s most scenic yet strategically connected regions. Nestled between the stunning Mourne Mountains Area of Outstanding Natural Beauty and the captivating landscape of Slieve Gullion, and just a short distance from Carlingford Lough, the property enjoys a unique setting that combines natural beauty with commercial convenience. Despite its picturesque surroundings, the location offers outstanding connectivity. The nearby Warrenpoint Harbour and A2 dual carriageway provides direct access to Newry City, and onward routes to Belfast and Dublin. Both Belfast International Airport and Dublin Airport are just over an hour’s drive, while the Port of Belfast and Dublin Port offer strong logistics links for trade and distribution. Newry itself is a vibrant regional hub with a comprehensive range of amenities, including leading schools, healthcare facilities, major retail outlets, and leisure opportunities. The surrounding area is rich in outdoor activities—offering canal walks, forest parks, mountain trails, and water sports along the Lough—making it an attractive setting for employers, employees, and visitors alike. Whether for continued commercial use or future redevelopment (subject to consents), West House View’s location combines the operational benefits of excellent infrastructure with the lifestyle appeal of its surrounding natural environment—a rare and valuable combination in today’s market.

Rooms

WHATS ON OFFER?: An excellent opportunity to acquire West House View, a substantial office and commercial premises extending to approximately 7,407 sq ft, located within the well-established Milltown Industrial Estate in Warrenpoint, Co. Down. Strategically positioned just off the A2 dual carriageway, this prominent property enjoys excellent connectivity to Warrenpoint Harbour (just minutes away) and Newry City, providing swift access to both regional and cross-border transport routes. Its location makes it ideal for businesses seeking efficient distribution links and strong commercial visibility in South Down. The property offers significant potential for a variety of commercial uses or future redevelopment, subject to the necessary planning and statutory consents. With rising demand for adaptable business space in the area, West House View is well-suited for a range of occupiers – from growing local enterprises to larger operators looking to expand. Surrounded by established businesses and benefitting from excellent transport infrastructure, this is a rare opportunity to secure a high-quality premises in one of the region’s most strategically located industrial and commercial zones.
LOCATION: West House View benefits from an exceptional location within Milltown Industrial Estate in Warrenpoint, placing it at the heart of one of Northern Ireland’s most scenic yet strategically connected regions. Nestled between the stunning Mourne Mountains Area of Outstanding Natural Beauty and the captivating landscape of Slieve Gullion, and just a short distance from Carlingford Lough, the property enjoys a unique setting that combines natural beauty with commercial convenience. Despite its picturesque surroundings, the location offers outstanding connectivity. The nearby Warrenpoint Harbour and A2 dual carriageway provides direct access to Newry City, and onward routes to Belfast and Dublin. Both Belfast International Airport and Dublin Airport are just over an hour’s drive, while the Port of Belfast and Dublin Port offer strong logistics links for trade and distribution. Newry itself is a vibrant regional hub with a comprehensive range of amenities, including leading schools, healthcare facilities, major retail outlets, and leisure opportunities. The surrounding area is rich in outdoor activities—offering canal walks, forest parks, mountain trails, and water sports along the Lough—making it an attractive setting for employers, employees, and visitors alike. Whether for continued commercial use or future redevelopment (subject to consents), West House View’s location combines the operational benefits of excellent infrastructure with the lifestyle appeal of its surrounding natural environment—a rare and valuable combination in today’s market.
NAV: We are advised that the NAV is £4,100 Estimated Rates Payable 24/25: TBC
Contact Garrett O'Hare Newry 028 3005 0633 Email Enquiry

Location

Show Map
What's Near by?

Click below to see on map

Mortgage Calculator

Monthly Repayments Need Mortgage Advice?

Disclaimer: The following calculations act as a guide only, and are based on a typical repayment mortgage model. Financial decisions should not be made based on these calculations and accuracy is not guaranteed. Always seek professional advice before making any financial decisions.

Request More Information

Requesting Info about...
West View House, Unit 28, Milltown Industrial Estate, Greenan Road, BT34 2PT West View House, Unit 28, Milltown Industrial Estate, Greenan Road, BT34 2PT

By registering your interest, you acknowledge our Privacy Policy and Terms & Conditions

Value My Property

Do you have a property to sell?
If you have a property to sell we can arrange for one of our experienced valuers to provide you with a no-obligation valuation.

Please complete the form opposite and a member of our team will get in touch to discuss your requirements.

Financial Services Enquiry

We can help with mortgages and insurance
John Minnis work with independent financial advisers that offer private mortgage advice and insurance options.

If you would like more information about what we can offer please complete the form opposite and a member of our team will get in touch to discuss your requirements.

Arrange a Viewing

Arrange a viewing for...
West View House, Unit 28, Milltown Industrial Estate, Greenan Road, BT34 2PT West View House, Unit 28, Milltown Industrial Estate, Greenan Road, BT34 2PT

Make an Offer

Make an Offer for...
West View House, Unit 28, Milltown Industrial Estate, Greenan Road, BT34 2PT NEW250089