Javascript is vital for the advanced features in this website such as Property Search. Please enable or upgrade your browser

17 Wolsele, 17

Wolseley Street, Belfast, BT7 1LG

Asking Price £225,000

17 Wolsele, 17

Wolseley Street, Belfast, BT7 1LG

Asking Price £225,000
Status Agreed
Asking Price £225,000
Style Terraced House
Bedrooms 4
Reception 1
Heating GFCH
EPC Rating E53/C71 - Download
Stamp Duty £ / £*
Calculate Stamp Duty
*Higher amount applies when purchasing as buy to let
or as an additional property
Status Agreed
Asking Price £225,000
Style Terraced House
Bedrooms 4
Reception 1
Heating GFCH
EPC Rating E53/C71 - Download
Stamp Duty £ / £*
*Higher amount applies when purchasing as buy to let
or as an additional property

Key Features

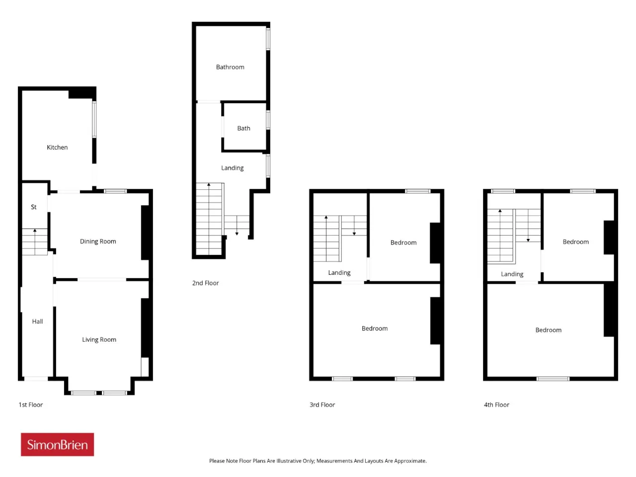
Three Storey Mid Terrace Property
Four Bedrooms
Spacious Open Plan Dining / Living Room
Kitchen
First Floor Bathroom & Separate Shower Room
Gas Heating
Income £19,200 Per Annum
Fully Let
HMO with license
Viewing by Private Appointment

Description

Located in the popular Botanic area of Belfast, the property is well placed to local amenities and is within comfortable walking distance of Belfast City Centre and Queen's University.

The property consists of a four-bedroom HMO with License. Current rental income of £19,200 per annum.

Vieiwng by appointment through our South Belfast office on 028 9066 8888.

Rooms

SOLID WOOD FRONT DOOR TO:
ENTRANCE HALL: Laminate wood floor
DINING/LIVING ROOM: 24'7" x 11'7" (7.5m x 3.53m) Laminate wood floor
KITCHEN: 11'3" x 14'7" (3.43m x 4.45m) Range of high and low level units, space for fridge and cooker, plumbed for washing machine, stainless steel sink unit, Vaillant gas boiler
FIRST FLOOR LANDING:
BATHROOM: Low flush WC, pedestal wash hand basin, bath
SHOWER ROOM: Pedestal wash hand basin, shower with electric shower
BEDROOM 1: 22'0" x 13'2" (6.7m x 4.01m)
BEDROOM 2: 10'8" x 9'8" (3.25m x 2.95m)
BEDROOM 3: 16'3" x 12'2" (4.95m x 3.7m) Velux window
BEDROOM 4: 11'0" x 9'6" (3.35m x 2.9m) Velux window
OUTSIDE: Enclosed concrete back yard
Contact Ieuan Gilbert South Belfast 028 90668888 Email Enquiry

Location

Show Map
What's Near by?

Click below to see on map

Mortgage Calculator

Monthly Repayments Need Mortgage Advice?

Disclaimer: The following calculations act as a guide only, and are based on a typical repayment mortgage model. Financial decisions should not be made based on these calculations and accuracy is not guaranteed. Always seek professional advice before making any financial decisions.

Request More Information

Requesting Info about...
17 Wolsele, 17, Wolseley Street, Belfast, BT7 1LG 17 Wolsele, 17, Wolseley Street, Belfast, BT7 1LG

By registering your interest, you acknowledge our Privacy Policy and Terms & Conditions

Value My Property

Do you have a property to sell?
If you have a property to sell we can arrange for one of our experienced valuers to provide you with a no-obligation valuation.

Please complete the form opposite and a member of our team will get in touch to discuss your requirements.

Financial Services Enquiry

We can help with mortgages and insurance
John Minnis work with independent financial advisers that offer private mortgage advice and insurance options.

If you would like more information about what we can offer please complete the form opposite and a member of our team will get in touch to discuss your requirements.

Arrange a Viewing

Arrange a viewing for...
17 Wolsele, 17, Wolseley Street, Belfast, BT7 1LG 17 Wolsele, 17, Wolseley Street, Belfast, BT7 1LG

Make an Offer

Make an Offer for...
17 Wolsele, 17, Wolseley Street, Belfast, BT7 1LG LBR251862
Loading...