Javascript is vital for the advanced features in this website such as Property Search. Please enable or upgrade your browser

26 Greenwood Hill

Belfast, County Down, BT8 7WF

Asking Price £265,000

26 Greenwood Hill

Belfast, County Down, BT8 7WF

Asking Price £265,000
Status For Sale
Asking Price £265,000
Style Semi-detached
Bedrooms 3
Heating OFCH
EPC Rating D60/D66 - Download
Stamp Duty £ / £*
Calculate Stamp Duty
*Higher amount applies when purchasing as buy to let
or as an additional property
Status For Sale
Asking Price £265,000
Style Semi-detached
Bedrooms 3
Heating OFCH
EPC Rating D60/D66 - Download
Stamp Duty £ / £*
*Higher amount applies when purchasing as buy to let
or as an additional property

Key Features

Superbly presented and deceptively spacious family home
Quiet, cul-de-sac location yet convenient to many amenities and leading schools
Generous living room with feature fireplace leading to separate dining room
Modern fitted kitchen with excellent range of units and built-in appliances
Open plan sun room with insulated roof and access to the rear garden
First floor family bathroom
Three excellent bedrooms including principal with en suite dressing room
Fixed staircase from bedroom two leading to a floored attic room
Driveway parking, private gardens and detached garage
Oil fired central heating and uPVC double glazed

Description

Enjoying a quiet cul-de-sac location off the Purdysburn Road in Newtownbreda this fabulous home therefore enjoys proximity to many amenities including leading schools, shopping and recreational facilities as well as ease to surrounding areas and the City Centre.



The deceptive accommodation comprises a generous living room with feature bay window, separate dining room and a modern kitchen leading to a sun room to complete the ground floor. The principal bedroom is bright and spacious with an en suite dressing room while bedroom two features a fixed staircase to a floored attic room and the third bedroom is of a good size. The family bathroom offers both a free-standing bath and a separate shower cubicle. Externally there is a good driveway parking leading to a detached garage currently used as an excellent home gym.



With much to offer and suitable to a range of buyers we encourage early viewing at your convenience.

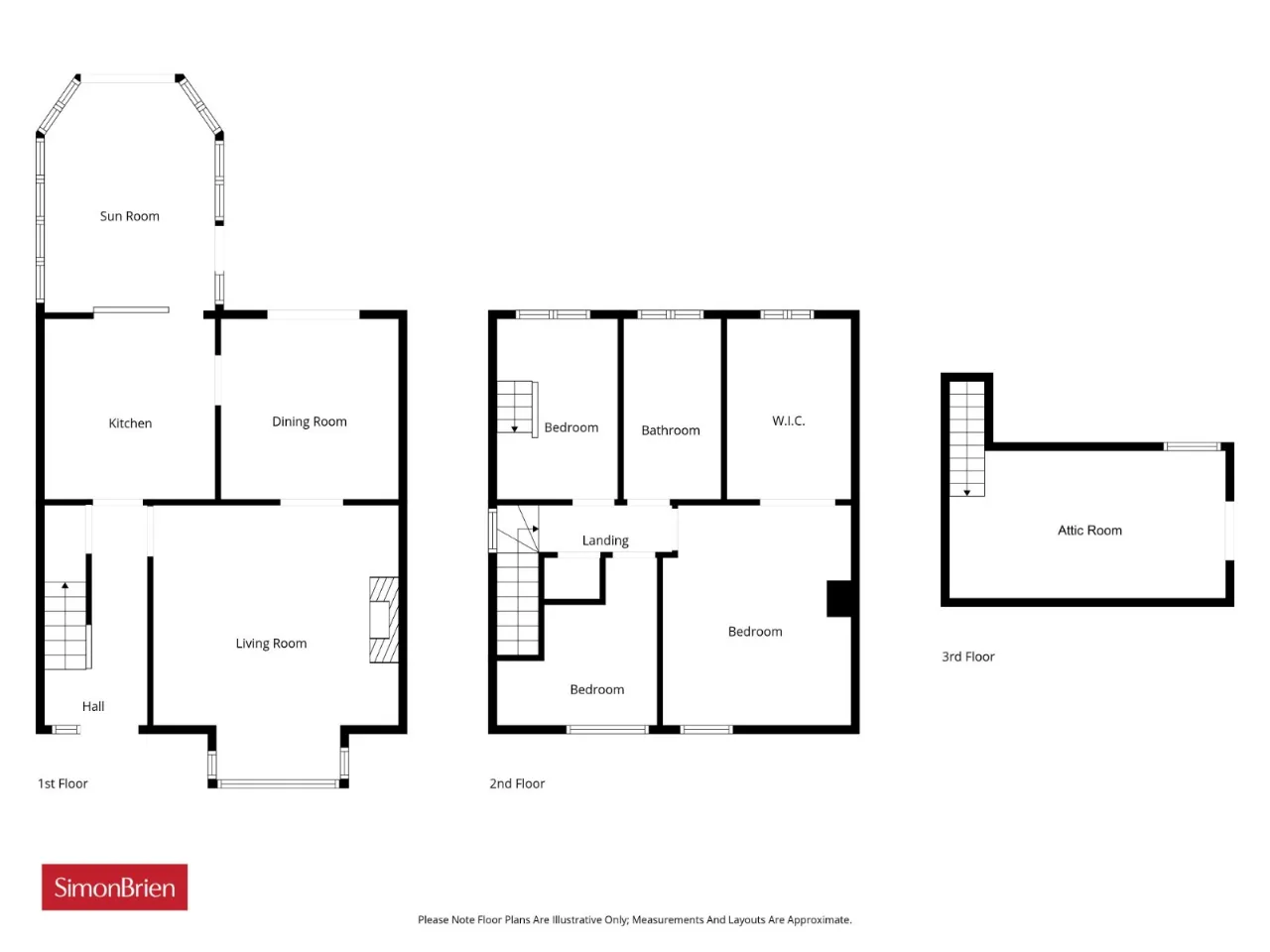
Rooms

RECEPTION HALL: Wood effect flooring, storage understairs
LIVING ROOM: 16'7" x 14'11" (5.05m x 4.55m) Into Bay Feature fireplace, cornice ceiling, double doors to:
DINING ROOM: 10'9" x 10'8" (3.28m x 3.25m) Sliding patio door to rear.  Door to:
KITCHEN: 10'9" x 10'7" (3.28m x 3.23m) Moder fitted kitchen with excellent range of units and integrated appliances.  Open plan to:
SUN ROOM: 13'5" x 11'10" (4.1m x 3.6m) Access to rear
FIRST FLOOR LANDING: Shelved hotpress and pressurized tank (installed 2024)
BEDROOM 1: 12'11" x 11'6" (3.94m x 3.5m) Wood effect flooring
EN SUITE DRESSING ROOM: 10'11" x 7'5" (3.33m x 2.26m) Matching flooring, excellent range of built-in furniture
BEDROOM 2: 10'11" x 7'8" (3.33m x 2.34m) At widest points Wood effect flooring.  Fixed staircase to:
ATTIC ROOM: 16'10" x 9'6" (5.13m x 2.9m) Tongue and groove walls and ceiling, storage in eaves, Velux window, shelved storage cupboard
BEDROOM 3: 10'0" x 6'11" (3.05m x 2.1m) At widest points
BATHROOM: 10'10" x 6'0" (3.3m x 1.83m) Modern suite comprising freestanding bath, WC, wash hand basin, corner shower cubicle and extractor
OUTSIDE: Driveway parking for multiple vehicles.  Front and enclosed rear gardens with patio area and sheltered decked platform – a great space for al fresco entertaining and unwinding.
DETACHED GARAGE: Currently configured as a home gym with painted walls and soft tile flooring. Garage door (concealed by stud wall), light and power, plumbed for washing machine.
Contact Ben Wilkinson South Belfast 028 90668888 Email Enquiry

Location

Show Map
What's Near by?

Click below to see on map

Mortgage Calculator

Monthly Repayments Need Mortgage Advice?

Disclaimer: The following calculations act as a guide only, and are based on a typical repayment mortgage model. Financial decisions should not be made based on these calculations and accuracy is not guaranteed. Always seek professional advice before making any financial decisions.

Request More Information

Requesting Info about...
26 Greenwood Hill, Belfast, County Down, BT8 7WF 26 Greenwood Hill, Belfast, County Down, BT8 7WF

By registering your interest, you acknowledge our Privacy Policy and Terms & Conditions

Value My Property

Do you have a property to sell?
If you have a property to sell we can arrange for one of our experienced valuers to provide you with a no-obligation valuation.

Please complete the form opposite and a member of our team will get in touch to discuss your requirements.

Financial Services Enquiry

We can help with mortgages and insurance
John Minnis work with independent financial advisers that offer private mortgage advice and insurance options.

If you would like more information about what we can offer please complete the form opposite and a member of our team will get in touch to discuss your requirements.

Arrange a Viewing

Arrange a viewing for...
26 Greenwood Hill, Belfast, County Down, BT8 7WF 26 Greenwood Hill, Belfast, County Down, BT8 7WF

Make an Offer

Make an Offer for...
26 Greenwood Hill, Belfast, County Down, BT8 7WF LBR260001
Loading...