Javascript is vital for the advanced features in this website such as Property Search. Please enable or upgrade your browser

8 Mary Street

Rostrevor, Newry, BT34 3AY

Offers Over £495,000

8 Mary Street

Rostrevor, Newry, BT34 3AY

Offers Over £495,000
Status For Sale
Offers Over £495,000
EPC Rating E48/C79
Stamp Duty £ / £*
Calculate Stamp Duty
*Higher amount applies when purchasing as buy to let
or as an additional property
Status For Sale
Offers Over £495,000
EPC Rating E48/C79 - Download
Stamp Duty £ / £*
*Higher amount applies when purchasing as buy to let
or as an additional property

Key Features

Magnificent Residential/Commercial Opportunity
Beautifully Proportioned Accomodation
Three Double Bedrooms
Two Spacious Reception Rooms
Large Kitchen Area on Lower Level with Generous Storage
Facilities
Cloakroom with WC's
Oil Fired Central Heating
Parking for 4 Cars to Rear
Popular Central Village Location with vast array of local
amenities, cafes and high quality restaurants
Walking Distance of Carlingford Lough
Newry 20 mins away with additional amenities and
schooling
Belfast circa 1 hr, Dublin circa 1 hr 15 mins

Description

Residential/Commercial Opportunity

We are delighted to offer for sale this attractive listed period end terrace beautifully positioned in the heart of the popular and much sought after village of Rostrevor.

Whether as a residential home or some form of onward commercial opportunity the property is deceptively spacious throughout over three floors with three bedrooms and two large reception rooms. To the rear there is parking for 4 cars.

The location is exceptional on the shores of Carlingford Lough with a vast array of local amenities, high quality restaurants and cafes on your doorstep.

The nearby city of Newry provides additional amenities and excellent schooling. Belfast is circa 1 hr away with Dublin 1 hr 15 mins

We are advised that the NAV is £7,450.00 Estimated Rates Payable 25/26: £4,475.84 per annum. The property should benefit from the Small Business Rates Relief Scheme, which would provide an occupier with a 20% reduction in rates payable. However; we recommend that you verify this with Land & Property Services.

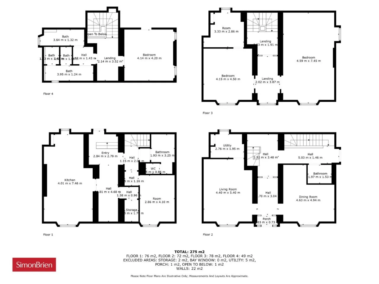
Rooms

GROUND FLOOR:
ENTRANCE HALL:
KITCHEN: 13'1" x 24'6" (4m x 7.47m)
STORAGE ROOM: 9'4" x 13'5" (3.33m x 2.84m)
BATHROOM: 6'3" x 10'7" (3.94m x 4m)
FIRST FLOOR:
LIVING ROOM: 14'5" x 17'8" (4.4m x 5.38m) Wood floor, Radiator, Victorian style window, Decorative brick work on walls.
DINNING ROOM: 15'1" x 16'2" (4.6m x 4.93m) Wood floor, Radiator, Victorian style window
UTILITY ROOM: 9'1" x 6'5" (2.77m x 1.96m)
SECOND FLOOR:
BEDROOM 1: 15'1" x 24'4" (4.6m x 7.42m)
BEDROOM 2: 13'6" x 14'9" (4.11m x 4.5m)
THIRD FLOOR:
BEDROOM 3: 13'6" x 13'9" (4.11m x 4.2m)
NAV: We are advised that the NAV is £7,450.00 Estimated Rates Payable 25/26: £4,475.84 per annum. The property should benefit from the Small Business Rates Relief Scheme, which would provide an occupier with a 20% reduction in rates payable. However; we recommend that you verify this with Land & Property Services.
Contact Stephen Gray Newry +44 28 3005 0633 Email Enquiry

Location

Show Map
What's Near by?

Click below to see on map

Mortgage Calculator

Monthly Repayments Need Mortgage Advice?

Disclaimer: The following calculations act as a guide only, and are based on a typical repayment mortgage model. Financial decisions should not be made based on these calculations and accuracy is not guaranteed. Always seek professional advice before making any financial decisions.

Share Property

Request More Information

Requesting Info about...
8 Mary Street, Rostrevor, Newry, BT34 3AY 8 Mary Street, Rostrevor, Newry, BT34 3AY

By registering your interest, you acknowledge our Privacy Policy and Terms & Conditions

Value My Property

Do you have a property to sell?
If you have a property to sell we can arrange for one of our experienced valuers to provide you with a no-obligation valuation.

Please complete the form opposite and a member of our team will get in touch to discuss your requirements.

Financial Services Enquiry

We can help with mortgages and insurance
John Minnis work with independent financial advisers that offer private mortgage advice and insurance options.

If you would like more information about what we can offer please complete the form opposite and a member of our team will get in touch to discuss your requirements.

Arrange a Viewing

Arrange a viewing for...
8 Mary Street, Rostrevor, Newry, BT34 3AY 8 Mary Street, Rostrevor, Newry, BT34 3AY

Make an Offer

Make an Offer for...
8 Mary Street, Rostrevor, Newry, BT34 3AY NEW250092
Loading...