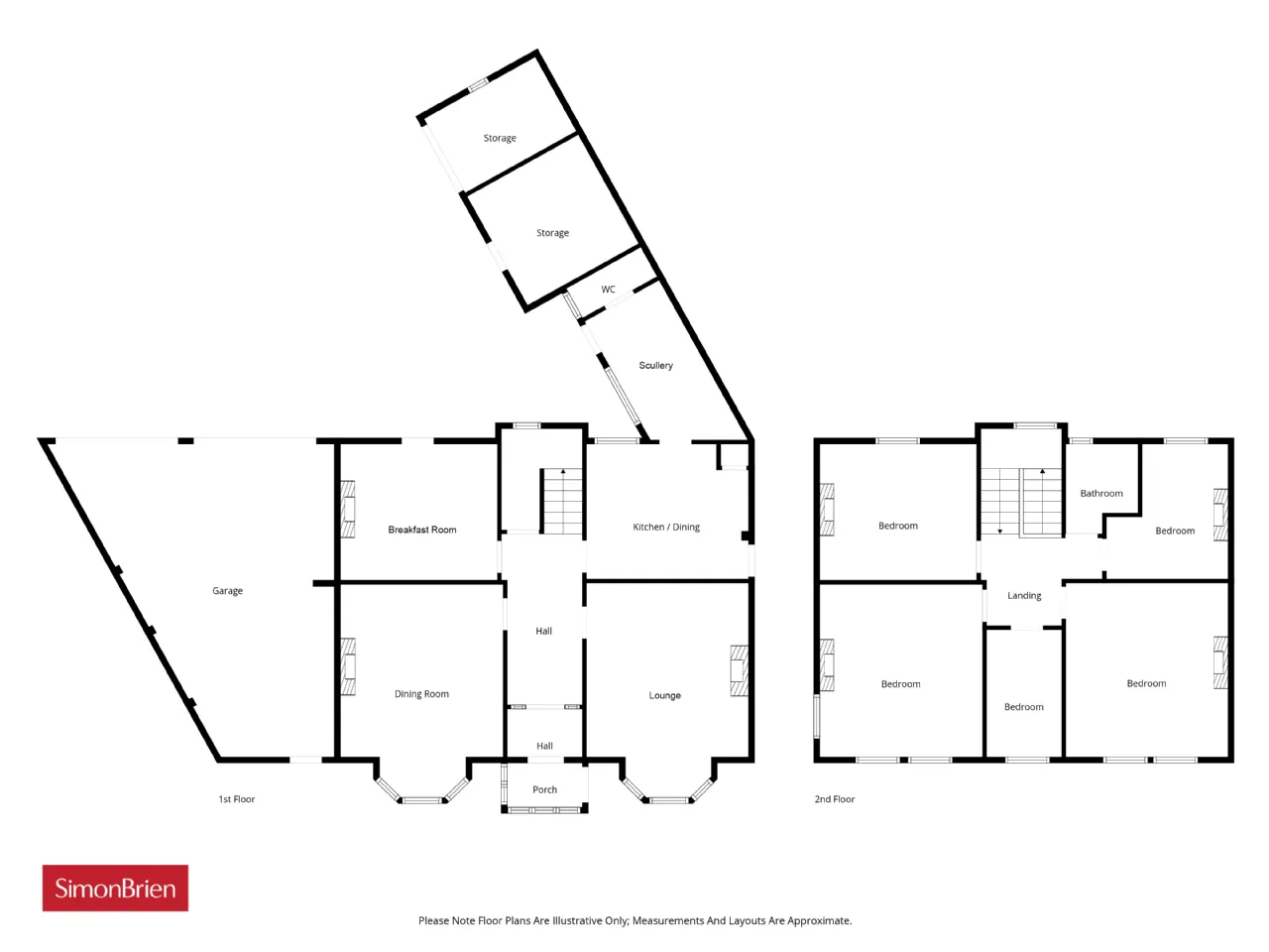
GROUND FLOOR:
Hardwood front door.
ENTRANCE PORCH:
Original hardwood front door to:
RECEPTION PORCH:
Laminate wood floor, corniced ceiling, hardwood front door and side panels to:
RECEPTION HALL:
Laminate wood flooring, corniced ceiling, under stairs storage cupboard.
DINING ROOM: 18'1" x 13'7" (5.5m x 4.14m Into bay.)
Corniced ceiling, ceiling rose, superb sea views, marble fireplace with open fire, window shutters.
LOUNGE: 18'0" x 13'5" (5.49m x 4.1m Into bay)
Picture rail, corniced ceiling, sea views, marble fireplace with slate hearth and open fire, corniced ceiling, ceiling rose. Window shutters.
KITCHEN: 13'3" x 11'5" (4.04m x 3.48m)
Range of low level units, laminate work surfaces, gas fired boiler. Single drainer stainless steel sink unit. Access to Scullery.
BREAKFAST ROOM: 12'9" x 8'10" (3.89m x 3.3m)
Mahogany fireplace, corniced ceiling, ceiling rose, glazed door to patio and garden, window shutters.
SUCLLERY: 13'0" x 7'0" (3.96m x 2.13m)
Belfast sink.
SEPARATE WC:
Low flush WC.
FIRST FLOOR:
BEDROOM 1: 14'8" x 13'4" (4.47m x 4.06m)
Dual aspect windows, corniced ceiling, stunning sea views.
BEDROOM 2:: 14'5" x 13'6" (4.4m x 4.11m)
Original fireplace, corniced ceiling, stunning sea views.
BEDROOM 3: 13'1" x 10'0" (4m x 3.05m)
Original fireplace, corniced ceiling, views to Holywood Hills.
BEDROOM 4: 11'0" x 8'2" (3.35m x 2.5m)
Corniced ceiling, original fireplace, cupboard with lagged copper cylinder and built in storage.
BOX ROOM: 10'5" x 5'7" (3.18m x 1.7m)
Stunning sea views.
BATHROOM:
Low flush WC, pedestal wash hand basin, panelled bath with electric shower unit.
LANDING:
Access to large roofspace with potentail to convert for additional accommodation, corniced ceiling.
OUTSIDE:
ATTACHED DOUBLE GARAGE:
Twin doors, light and power.
GARDENS:
Large rear garden in lawns with flowerbeds in plants and shrubs. Large stone driveway with generous parking.
ADDITIONAL TWO STOREY OUTBUILDING:
SCULLERY: 13'0" x 7'0" (3.96m x 2.13m)
Belfast sink.