Javascript is vital for the advanced features in this website such as Property Search. Please enable or upgrade your browser

Corn Cottage, 8C

Ballybryan Road, Greyabbey, BT22 2RB

Asking Price £139,950

Corn Cottage, 8C

Ballybryan Road, Greyabbey, BT22 2RB

Asking Price £139,950
Status For Sale
Asking Price £139,950
Style Terraced House
Bedrooms 2
EPC Rating D66/C72
Stamp Duty £ / £*
Calculate Stamp Duty
*Higher amount applies when purchasing as buy to let
or as an additional property
Status For Sale
Asking Price £139,950
Style Terraced House
Bedrooms 2
EPC Rating D66/C72 - Download
Stamp Duty £ / £*
*Higher amount applies when purchasing as buy to let
or as an additional property

Description

A superb opportunity to purchase a charming cottage within this sought-after rural development near Greyabbey.

The accommodation comprises two bedrooms and a bright open-plan living, kitchen and dining space, offering comfortable, low-maintenance living. The property is offered fully furnished, enhancing its appeal as a turnkey investment.

Ideal for owner-occupiers and investors alike, with easy access to coastal walks and local attractions.

Rooms

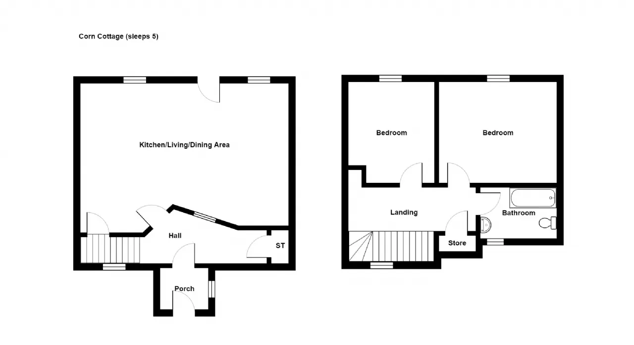
GROUND FLOOR:
ENCLOSED ENTRANCE PORCH: Ceramic tiled floor.
ENTRANCE HALL: Ceramic tiled floor.
CLOAKROOM:
LIVING/KITCHEN/DINING AREA: 21'5" x 13'1" (6.53m x 4m) In the living area - ‘Morso’ wood-burning stove. In the kitchen area - full range of high and low level maple units. Stainless steel single drainer sink unit with mixer taps. 4 ring hob with under oven. Freezer. Dishwasher. Partially tiled walls. Ceramic tiled floor. Storage understairs. Rear door leading to terrace.
FIRST FLOOR:
BEDROOM 1: 11'10" x 10'7" (3.6m x 3.23m) Laminate wooden floor.
BEDROOM 2: 11'3" x 9'6" (3.43m x 2.9m) Laminate wooden floor.
BATHROOM: White suite comprising panelled bath with thermostatic shower. Low flush WC. Pedestal wash hand basin. White towel radiator. Partially tiled walls. Ceramic tiled floor.
LANDING: Access to shelved hotpress.
OUTSIDE: To the front is a South facing patio terrace. Communal parking. Storage area.
Contact Samuel Dickey East Belfast +44 28 90595555 Email Enquiry

Location

Show Map
What's Near by?

Click below to see on map

Mortgage Calculator

Monthly Repayments Need Mortgage Advice?

Disclaimer: The following calculations act as a guide only, and are based on a typical repayment mortgage model. Financial decisions should not be made based on these calculations and accuracy is not guaranteed. Always seek professional advice before making any financial decisions.

Share Property

Request More Information

Requesting Info about...
Corn Cottage, 8C, Ballybryan Road, Greyabbey, BT22 2RB Corn Cottage, 8C, Ballybryan Road, Greyabbey, BT22 2RB

By registering your interest, you acknowledge our Privacy Policy and Terms & Conditions

Value My Property

Do you have a property to sell?
If you have a property to sell we can arrange for one of our experienced valuers to provide you with a no-obligation valuation.

Please complete the form opposite and a member of our team will get in touch to discuss your requirements.

Financial Services Enquiry

We can help with mortgages and insurance
John Minnis work with independent financial advisers that offer private mortgage advice and insurance options.

If you would like more information about what we can offer please complete the form opposite and a member of our team will get in touch to discuss your requirements.

Arrange a Viewing

Arrange a viewing for...
Corn Cottage, 8C, Ballybryan Road, Greyabbey, BT22 2RB Corn Cottage, 8C, Ballybryan Road, Greyabbey, BT22 2RB

Make an Offer

Make an Offer for...
Corn Cottage, 8C, Ballybryan Road, Greyabbey, BT22 2RB HLW260145
Loading...