Javascript is vital for the advanced features in this website such as Property Search. Please enable or upgrade your browser

10 Gransha Lane

Dundonald, Belfast, BT16 2HA

Asking Price £475,000

10 Gransha Lane

Dundonald, Belfast, BT16 2HA

Asking Price £475,000
Status Agreed
Asking Price £475,000
Style Detached
Bedrooms 4
EPC Rating B84/B84 - Download
Stamp Duty £ / £*
Calculate Stamp Duty
*Higher amount applies when purchasing as buy to let
or as an additional property
Status Agreed
Asking Price £475,000
Style Detached
Bedrooms 4
EPC Rating B84/B84 - Download
Stamp Duty £ / £*
*Higher amount applies when purchasing as buy to let
or as an additional property

Key Features

Recently Constructed Detached Property
Four Well Proportioned Bedrooms (Main Bedroom With Ensuite Shower Room)
Generous Living Room/Dining Room
Stunning Fitted Kitchen Open To Family Room
Contemporary White Bathroom Suite
Utility Room and Cloakroom with WC
Gas Fired Central Heating
Mostly Triple Glazed Windows
CAT 6 Wiring
Wired for EV charger
Ample Secure Off-Street Parking to Rear for four cars and remote controlled gate
Landscaped Gardens To Front / Rear With Paved Patio Area
Excellent Location, Close To Schools, Public Transport Links, Ulster Hospital & Dundonald Omni Park

Description

Interested in this property? Sign up for MY Simon Brien to arrange your viewing, see current offers or make your own offer. Register now at SimonBrien.com.

This immaculately presented property has been thoughtfully designed and built to offer flexible and spacious accommodation with a high standard of fixtures and fittings throughout. The property layout comprises an reception hall open to living and dining, open plan fitted kitchen with a stylish range of units and fitted appliances open to living area. A contemporary bathroom in white suite four bedrooms - one of which has an ensuite shower room. Outside, the kitchen living room and utility room, both open onto an entertainment sized patio, which leads to a landscaped rear garden and ample secure, off-street parking

Located close to Old Dundonald Road there are excellent transport links to East Belfast and the City Centre. Closer amenities include The Ulster Hospital, David Lloyd Leisure Centre, and Dundonald Omni Park with a variety of restaurants on offer. This tastefully finished home will appeal to a range of buyers, from those seeking to downsize to families seeking a spacious home with abundant accommodation.

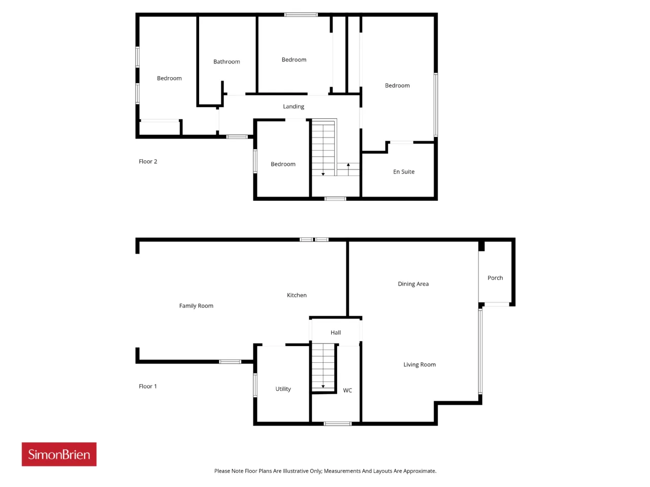
Rooms

GROUND FLOOR: Entrance door.
ENTRANCE HALL:
RECEPTION HALL/LIVING ROOM: 24'0" x 17'0" (7.32m x 5.18m) Parquet wood laminate floor.
CLOAKROOM: Low flush WC, corner wall mounted sink.
KITCHEN OPEN TO LIVING AND DINING AREAS: 27'0" x 16'0" (8.23m x 4.88m) Full range of high and low level units with oak wood block work surfaces, stainless steel single drainer sink unit, dishwasher, fridge freezer, wood laminate flooring, sliding door to rear.
UTILITY ROOM: 10'0" x 6'7" (3.05m x 2m) Full range of high and low level units, Belfast sink with mixer taps, plumbed for washing machine and tumble dryer, gas fired boiler.
FIRST FLOOR:
BEDROOM 1: 16'10" x 9'6" (5.13m x 2.9m) Built in robes with mirrored sliding doors.
ENSUITE SHOWER ROOM: Shower cubicle with overhead rain shower, vanity sink unit with mixer taps, low flush WC, foot lighting.
BEDROOM 2: 9'10" x 9'6" (3m x 2.9m) Built in wardrobes with mirrored sliding doors.
BEDROOM 3: 10'0" x 6'7" (3.05m x 2m)
BEDROOM 4: 13'9" x 7'6" (4.2m x 2.29m) Built in robe with mirrored sliding doors.
OUTSIDE: To the rear is a paved patio area and garden laid in lawn. Driveway parking for 3 cars, remote control gates.
Contact Samuel Dickey East Belfast +44 28 90595555 Email Enquiry

Location

Show Map
What's Near by?

Click below to see on map

Mortgage Calculator

Monthly Repayments Need Mortgage Advice?

Disclaimer: The following calculations act as a guide only, and are based on a typical repayment mortgage model. Financial decisions should not be made based on these calculations and accuracy is not guaranteed. Always seek professional advice before making any financial decisions.

Share Property

Request More Information

Requesting Info about...
10 Gransha Lane, Dundonald, Belfast, BT16 2HA 10 Gransha Lane, Dundonald, Belfast, BT16 2HA

By registering your interest, you acknowledge our Privacy Policy and Terms & Conditions

Value My Property

Do you have a property to sell?
If you have a property to sell we can arrange for one of our experienced valuers to provide you with a no-obligation valuation.

Please complete the form opposite and a member of our team will get in touch to discuss your requirements.

Financial Services Enquiry

We can help with mortgages and insurance
John Minnis work with independent financial advisers that offer private mortgage advice and insurance options.

If you would like more information about what we can offer please complete the form opposite and a member of our team will get in touch to discuss your requirements.

Arrange a Viewing

Arrange a viewing for...
10 Gransha Lane, Dundonald, Belfast, BT16 2HA 10 Gransha Lane, Dundonald, Belfast, BT16 2HA

Make an Offer

Make an Offer for...
10 Gransha Lane, Dundonald, Belfast, BT16 2HA UNT250379
Loading...