Javascript is vital for the advanced features in this website such as Property Search. Please enable or upgrade your browser

15 Dalton Drive

Comber, Newtownards, BT23 5HF

Asking Price £199,950

15 Dalton Drive

Comber, Newtownards, BT23 5HF

Asking Price £199,950
Status For Sale
Asking Price £199,950
Style Semi-detached
Bedrooms 3
Receptions 2
EPC Rating E54/C77 - Download
Stamp Duty £ / £*
Calculate Stamp Duty
*Higher amount applies when purchasing as buy to let
or as an additional property
Status For Sale
Asking Price £199,950
Style Semi-detached
Bedrooms 3
Receptions 2
EPC Rating E54/C77 - Download
Stamp Duty £ / £*
*Higher amount applies when purchasing as buy to let
or as an additional property

Key Features

A superb red brick semi detached villa
Ideally located just off the Glen Road
Close to shopping, schools, and sporting facilities
Entrance hall with understairs storage
Lounge offering a fireplace and multi-fuel stove
Deluxe open plan kitchen/ dining space with painted shaker style units, Rangemaster cooker and breakfast bar
uPVC double glazed conservatory
Three bedrooms
Luxury shower room comprising modern white suite
Floored Roofspace (17’10” x 10’3”) – Plastered, decorated, radiator, Velux window – currently used as a fourth bedroom
Detached matching garage, approached via ample driveway
Gardens to front in lawn, enclosed to rear in large patio, and lower gravel patio with fencing
Oil fired central heating system/ uPVC double glazed windows and rear doors
Composite front door

Description

An attractive red brick semi-detached property set on an easily managed site within the popular Dalton development, just off the Glen Road, Comber.

No. 15 Dalton Drive has been modernised and updated by our client and has been presented in a beautiful manor throughout. The accommodation briefly comprises, entrance porch leading to entrance hall, lounge with stove, beautiful painted kitchen/ dining space with shaker style units, plus a great sized conservatory. On the first floor, there are three bedrooms, a luxury shower room comprising modern white suite, and a floored roofspace, which is currently being used as fourth bedroom.

Externally, the property has a semi enclosed lawn to the front. To the rear, the garden is laid out a large patio, lower gravel patio, and fencing. There is also a detached matching garage approached via a driveway providing ample off-road parking.

To arrange your viewing appointment, please contact our Newtownards office on 02891 800700.

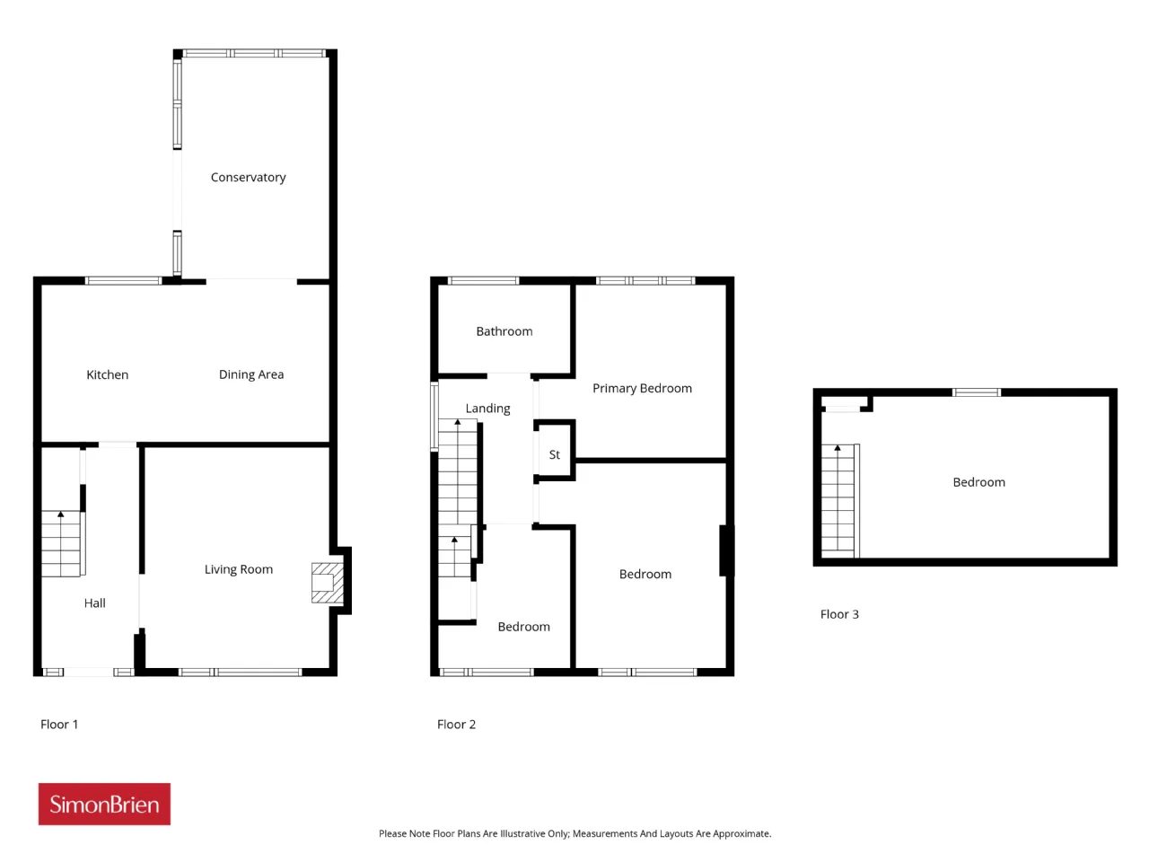
Rooms

GROUND FLOOR: Grey composite front door.
ENTRANCE HALL: Ceramic tiled floor, LED recessed spotlighting, under stairs storage, glazed door to Lounge.
LOUNGE: 13'6" x 11'10" (4.11m x 3.6m) Attractive fireplace, multi fuel stove, tiled hearth, polished laminate floor, TV and telephone points.
OPEN PLAN DELUXE KITCHEN/DINING: 18'7" x 9'11" (5.66m x 3.02m) 1.5 tub single drainer stainless steel sink unit with mixer taps, range of high and low level painted light grey and heritage green shaker style units, Formica roll edge work surfaces, 110 Rangemaster cooker, black extractor hood, integrated fridge freezer and dishwasher, display cabinet, concealed lighting, breakfast bar, wall tiling, ceramic tiled floor, LED recessed spotlighting, uPVC double glazed French doors to Conservatory.
UPVC DOUBLE GLAZED CONSERVATORY: 12'6" x 9'2" (3.8m x 2.8m) Ceramic tiled floor, light and power, uPVC double glazed French doors to rear enclosed garden.
FIRST FLOOR:
LANDING: Concealed hotpress with copper cylinder and immersion.
BEDROOM 1: 12'7" x 9'8" (3.84m x 2.95m)
BEDROOM 2: 10'10" x 9'9" (3.3m x 2.97m) Polished laminate floor, countryside views.
BEDROOM 3: 8'8" x 8'7" (2.64m x 2.62m (L Shaped)) Stairs accessing floored roofspace.
FLOORED ROOFSPACE: 17'10" x 10'3" (5.44m x 3.12m) Plastered, decorated, light and power, radiator, large velux window, eaves storage.
LUXURY SHOWER ROOM: Modern white suite comprising: Large separate fully tiled shower cubicle with Mira thermostatically controlled shower unit, glass panel, floating vanity sink unit with mixer taps, push button WC, chrome towel radiator, feature tiled walls, ceramic tiled floor, LED recessed spotlighting, extractor fan.
OUTSIDE:
DETACHED MATCHING GARAGE: 21'4" x 8'11" (6.5m x 2.72m) Up and over door, light and power, oil fired boiler, plumbed for washing machine, two windows, uPVC double glazed side door.
GARDENS: To front in lawns, garden wall. Enclosed garden to rear laid out in concrete patio, steps down to gravel area, fencing, outside tap, outside light, outside water tap.
Contact Richard Orr Newtownards 028 91800700 Email Enquiry
Contact Phoebe Skelton Newtownards 028 91800700 Email Enquiry

Location

Show Map
What's Near by?

Click below to see on map

Mortgage Calculator

Monthly Repayments Need Mortgage Advice?

Disclaimer: The following calculations act as a guide only, and are based on a typical repayment mortgage model. Financial decisions should not be made based on these calculations and accuracy is not guaranteed. Always seek professional advice before making any financial decisions.

Request More Information

Requesting Info about...
15 Dalton Drive, Comber, Newtownards, BT23 5HF 15 Dalton Drive, Comber, Newtownards, BT23 5HF

By registering your interest, you acknowledge our Privacy Policy and Terms & Conditions

Value My Property

Do you have a property to sell?
If you have a property to sell we can arrange for one of our experienced valuers to provide you with a no-obligation valuation.

Please complete the form opposite and a member of our team will get in touch to discuss your requirements.

Financial Services Enquiry

We can help with mortgages and insurance
John Minnis work with independent financial advisers that offer private mortgage advice and insurance options.

If you would like more information about what we can offer please complete the form opposite and a member of our team will get in touch to discuss your requirements.

Arrange a Viewing

Arrange a viewing for...
15 Dalton Drive, Comber, Newtownards, BT23 5HF 15 Dalton Drive, Comber, Newtownards, BT23 5HF

Make an Offer

Make an Offer for...
15 Dalton Drive, Comber, Newtownards, BT23 5HF NTN250128
Loading...