Javascript is vital for the advanced features in this website such as Property Search. Please enable or upgrade your browser

Site 34, F6 Mealough

Mealough Road,, Belfast, BT8

Asking Price £375,000

Site 34, F6 Mealough

Mealough Road,, Belfast, BT8

Asking Price £375,000
Status Agreed
Asking Price £375,000
Style Semi-detached
Bedrooms 4
Receptions 2
EPC Rating 0/0
Stamp Duty £ / £*
Calculate Stamp Duty
*Higher amount applies when purchasing as buy to let
or as an additional property
Status Agreed
Asking Price £375,000
Style Semi-detached
Bedrooms 4
Receptions 2
EPC Rating 0/0 - Download
Stamp Duty £ / £*
*Higher amount applies when purchasing as buy to let
or as an additional property

Key Features

Connection sockets for BT and TV
Cabling for digital and SKY TV
Zoned security alarm
EXTERNAL FEATURES
A mixture of white render, grey brick and timber effect maintenance free cladding
Maintenance free PVC energy efficient double glazing with lockable system
Bitmac driveways
High quality timber front entrance doors
Landscaped gardens with paved patio area
Timber fencing to rear boundaries where appropriate
Feature external lighting to front door
Outdoor tap
HEATING
High efficiency gas combination boiler
Wood burning stoves in F4 & F5 house types
ENERGY EFFICIENCY
6 PV solar panels and 5kW battery storage as standard
High level of insulation incorporated in floors, walls and roofs
All houses are constructed to provide a high level of air tightness in order to retain heat
FLOORING
Carpeting provided throughout all bedrooms, lounges, stairs and landings
Tiles to hall, kitchen and dining areas
Tiles to bathroom floors, showers and splash backs. Tiles to cloakroom and utility floors (where applicable)
SELECTIONS
All selections to be made from the builder’s nominated suppliers only
All selections are from a pre-selected range and are subject to change
WARRANTY
NHBC 10 year buildmark warranty

Description

MAKING THE HOUSE WORK FOR YOUR LIFESTYLE

A home that is designed better and built better will give you a better life. You´re not just buying a home, you´re buying the promise of a happier, healthier lifestyle.

ENERGY SAVING WITH SOLAR TECHNOLOGY

Contemporary, eco-friendly homes in an exclusive and beautiful setting on the outskirts of Belfast. We´ve installed solar, smart and renewable technologies to give you energy independence by reducing your reliance on the grid. A solar PV system provides clean, free electricity to your home, reducing your energy bills and future proofing you from continually rising energy prices with savings of up to £500 per year.

HOME OWNER BENEFITS

Reclaim your energy independence by reducing your reliance on the grid. Your solar PV system provides clean, free electricity to your home, reducing your energy bills and future proofing you from continually rising energy prices. We´re also allowing provision for EV charging.

Insurance against rising
energy costs
Environmentally friendly
Energy independence
Savings up to £500 per year

SMART SECURITY

So you can protect what matters most, we´re installing Ring Doorbells in every home. See, hear and speak to visitors from anywhere with this Video Doorbell. Get instant notifications on your phone and tablet, customise your motion settings and conveniently stay connected to home, no matter where you are.

SMART ENERGY EFFICIENT

You don´t have to be home to have control. As standard in every home, we are installing smart phone compatible digital thermostats **. Smart profiles enable you to program time and temperature settings and then apply them to a number of zones, automatically turning the heating off when you leave and back on when you return. CO2 emissions are much less too. A range of active energy management measures have been incorporated to improve your home´s energy efficiency. With a high level of insulation and increased air tightness, our homes prevent heat loss and ensure that the heat generated remains in the property.

HOUSE TYPES. FIND A HOME FOR YOU

Mealough house types are perfect for an array of lifestyles. From first time buyers to larger family dwellings, we have carefully considered each home in our new range. With the premium Turnkey package and innovative green technology, it´s clear to see that Mealough has a home for everyone.

ABOUT THE DEVELOPER

Our fascination with considered house building design isn´t something new. We´ve always been intrigued by how even the simplest idea can positively influence daily routine. By remaining curious about how people live their lives, we are using the same approach to help people live better.

We´re now in our third generation of family ownership. Longevity like that doesn´t just happen, in fact it´s rare. What makes it possible is the trust we create and the reputation we build. From the first home our grandfather built to our 5000th, high levels of finish and the best locations have always been our bedrock. We´re now adding intelligent, innovative design to further enhance our reputation.

FOR FURTHER INFORMATION ABOUT THE DEVELOPMENT PLEASE CLICK ON BROCHURE TO REVIEW.

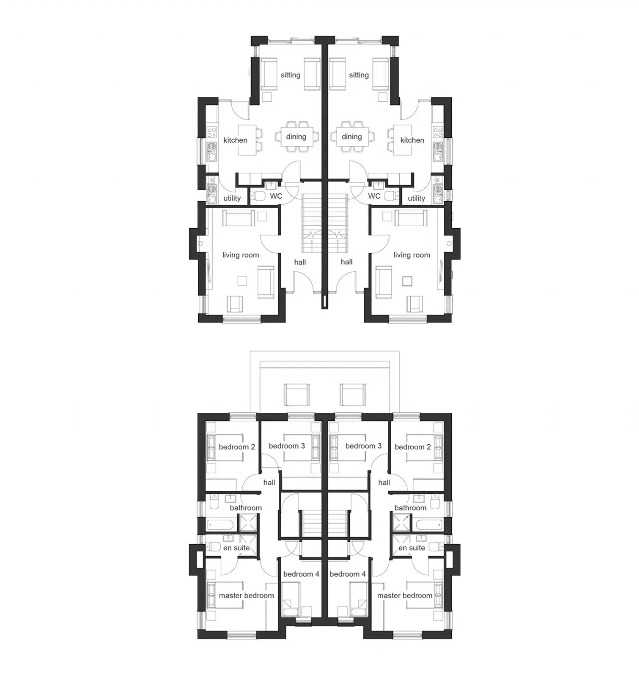
Rooms

KITHCEN / DINING: 19'0" x 12'2" (5.8m x 3.7m)
UTILITY ROOM: 6'11" x 4'11" (2.1m x 1.5m)
WC: 2'11" x 4'7" (0.9m x 1.4m)
HALLWAY: 17'5" x 6'7" (4.2m x 0.94m)
STORAGE: 7'7" x 2'11" (1.2m x 0.9m)
SITTING ROOM: 10'6" x 9'10" (3.2m x 3m)
LIVING ROOM: 17'9" x 11'10" (5.4m x 3.6m)
MASTER BEDROOM: 12'2" x 11'10" (3.7m x 3.6m)
ENSUITE: 8'6" x 3'7" (2.6m x 1.1m)
BEDROOM 2: (: 3.5m x 2.7m)
BEDROOM 3: 11'2" x 9'10" (3.4m x 3m)
BEDROOM 4: 9'6" x 6'7" (2.9m x 2m)
BATHROOM: 9'6" x 6'7" (2.9m x 2m)
Contact Jonathan Killen South Belfast +44 28 90668888 Email Enquiry

Location

Show Map
What's Near by?

Click below to see on map

Mortgage Calculator

Monthly Repayments Need Mortgage Advice?

Disclaimer: The following calculations act as a guide only, and are based on a typical repayment mortgage model. Financial decisions should not be made based on these calculations and accuracy is not guaranteed. Always seek professional advice before making any financial decisions.

Share Property

Request More Information

Requesting Info about...
Site 34, F6 Mealough, Mealough Road,, Belfast, BT8 Site 34, F6  Mealough, Mealough Road,, Belfast, BT8

By registering your interest, you acknowledge our Privacy Policy and Terms & Conditions

Value My Property

Do you have a property to sell?
If you have a property to sell we can arrange for one of our experienced valuers to provide you with a no-obligation valuation.

Please complete the form opposite and a member of our team will get in touch to discuss your requirements.

Financial Services Enquiry

We can help with mortgages and insurance
John Minnis work with independent financial advisers that offer private mortgage advice and insurance options.

If you would like more information about what we can offer please complete the form opposite and a member of our team will get in touch to discuss your requirements.

Arrange a Viewing

Arrange a viewing for...
Site 34, F6 Mealough, Mealough Road,, Belfast, BT8 Site 34, F6  Mealough, Mealough Road,, Belfast, BT8

Make an Offer

Make an Offer for...
Site 34, F6 Mealough, Mealough Road,, Belfast, BT8 LBR260342
Loading...