Javascript is vital for the advanced features in this website such as Property Search. Please enable or upgrade your browser

17 Shanlieve Road

Belfast, County Antrim, BT11 8GN

Asking Price £200,000

17 Shanlieve Road

Belfast, County Antrim, BT11 8GN

Asking Price £200,000
Status For Sale
Asking Price £200,000
Style Terraced House
Bedrooms 3
Reception 1
EPC Rating 0/0
Stamp Duty £ / £*
Calculate Stamp Duty
*Higher amount applies when purchasing as buy to let
or as an additional property
Status For Sale
Asking Price £200,000
Style Terraced House
Bedrooms 3
Reception 1
EPC Rating 0/0 - Download
Stamp Duty £ / £*
*Higher amount applies when purchasing as buy to let
or as an additional property

Key Features

Bright and spacious end terrace in most popular and convenient location
Excellent proximity to local schools, shops and facilities
Generous living room with excellent natural light
Modern fitted kitchen with integrate appliances and access to the rear
Three well-proportioned bedrooms
First floor bathroom with modern suite
uPVC double glazing, mains gas central heating
Patio area to the front, enclosed gardens to the rear with terrace and lawn

Description

Just off the Andersonstown Road this deceptively spacious home is therefore most convenient to an abundance of amenities including excellent local schools, village-type shops, recreational facilities and transport connections.



The accommodation has been tastefully presented by the current owner and comprises a generous living room with excellent natural light pouring in from both ends, a fabulous kitchen with integrated appliances and a utility cupboard, three well proportioned bedrooms and a modern bathroom with separate WC. Of special note are the spacious gardens, ideal for a young family.



In an area of consistently high demand we recommend an internal viewing at your convenience.

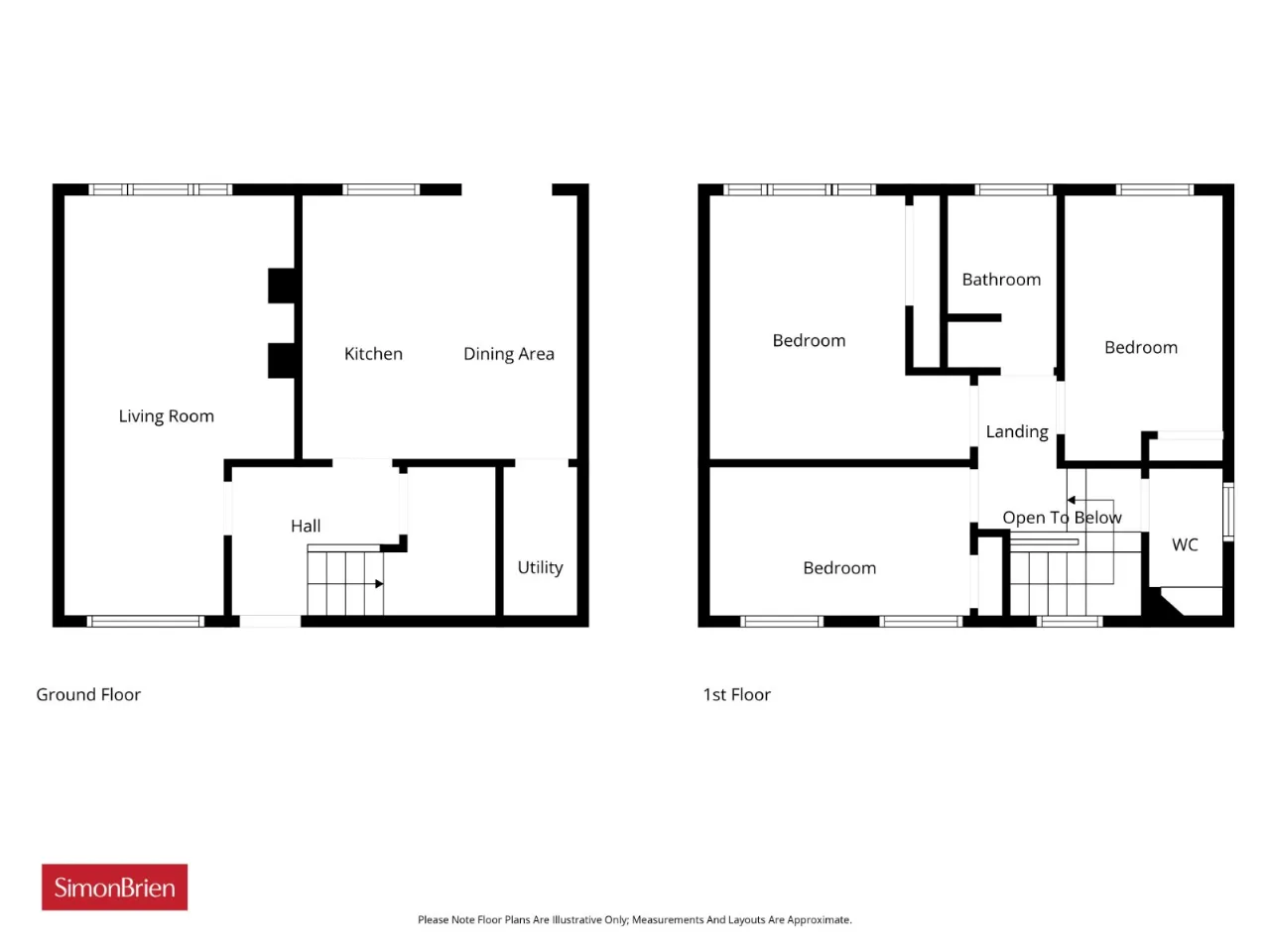
Rooms

RECEPTION HALL: Generous storage cupboard
LIVING ROOM: 18'11" x 10'5" (5.77m x 3.18m) Wood effect flooring
KITCHEN/DINING: 12'5" x 12'1" (3.78m x 3.68m) Modern fitted kitchen with excellent range of units, integrated appliances, porcelain tiled floor, utility cupboard with plumbing for washing machine, double doors to rear garden
FIRST FLOOR LANDING: Access to roofspace
BEDROOM 1: 11'9" x 9'3" (3.58m x 2.82m) Wood effect flooring, shelved robe
BEDROOM 2: 12'1" x 7'5" (3.68m x 2.26m) Wood effect flooring, built in robe
BEDROOM 3: 11'6" x 6'8" (3.5m x 2.03m) Wood effect flooring, built in robe
BATHROOM: 7'10" x 4'8" (2.4m x 1.42m) Modern suite comprising panelled bath with mixer taps and shower above, vanity unit, built in shelving
SEPARATE WC: Low flush WC
OUTSIDE: Flagged patio area to the front.  Enclosed side and rear gardens with extensive terrace and lawn.
Contact Ben Wilkinson South Belfast 028 90668888 Email Enquiry

Location

Show Map
What's Near by?

Click below to see on map

Mortgage Calculator

Monthly Repayments Need Mortgage Advice?

Disclaimer: The following calculations act as a guide only, and are based on a typical repayment mortgage model. Financial decisions should not be made based on these calculations and accuracy is not guaranteed. Always seek professional advice before making any financial decisions.

Request More Information

Requesting Info about...
17 Shanlieve Road, Belfast, County Antrim, BT11 8GN 17 Shanlieve Road, Belfast, County Antrim, BT11 8GN

By registering your interest, you acknowledge our Privacy Policy and Terms & Conditions

Value My Property

Do you have a property to sell?
If you have a property to sell we can arrange for one of our experienced valuers to provide you with a no-obligation valuation.

Please complete the form opposite and a member of our team will get in touch to discuss your requirements.

Financial Services Enquiry

We can help with mortgages and insurance
John Minnis work with independent financial advisers that offer private mortgage advice and insurance options.

If you would like more information about what we can offer please complete the form opposite and a member of our team will get in touch to discuss your requirements.

Arrange a Viewing

Arrange a viewing for...
17 Shanlieve Road, Belfast, County Antrim, BT11 8GN 17 Shanlieve Road, Belfast, County Antrim, BT11 8GN

Make an Offer

Make an Offer for...
17 Shanlieve Road, Belfast, County Antrim, BT11 8GN LBR260196
Loading...