Javascript is vital for the advanced features in this website such as Property Search. Please enable or upgrade your browser

The Barn, 6a

Maxwell Lane, Bangor, BT20 3RR

Offers Over £695,000

The Barn, 6a

Maxwell Lane, Bangor, BT20 3RR

Offers Over £695,000
Status For Sale
Offers Over £695,000
Style Detached
Bedrooms 4
Receptions 2
EPC Rating B84/B84 - Download
Stamp Duty £ / £*
Calculate Stamp Duty
*Higher amount applies when purchasing as buy to let
or as an additional property
Status For Sale
Offers Over £695,000
Style Detached
Bedrooms 4
Receptions 2
EPC Rating B84/B84 - Download
Stamp Duty £ / £*
*Higher amount applies when purchasing as buy to let
or as an additional property

Key Features

Traditional Stone Barn Conversion with Contemporary Interior circa 2400 sq ft
Superb views over Belfast Lough
Open-plan Kitchen / Living / Dining Area on the first floor with spacious layout designed for modern lifestyles
Bespoke kitchen with excellent range of high-end integrated appliances, central island and direct access to private terrace
Private balcony terrace perfect for outdoor entertaining or relaxing and taking in the views
Snug or cinema room with media wall
Three or four well proportioned bedrooms on the ground Floor - Including a principal suite with dressing area and luxury en-suite
Contemporary Bathroom
Utility storage incorporating laundry area / gas boiler / cloaks area
Just minutes from scenic coastal walks, Bangor City Centre and Marina as well as excellent transport links to Belfast
Situated off the Maxwell Road, One of North Down’s most sought-after locations
Gas Heating (Underfloor Heating on the Ground Floor)
Off street private parking for two cars
No onward chain
Early viewing is highly recommended to fully appreciate everything all that is on offer

Description

This superb detached home is located just off Maxwell Road in Bangor, offering a rare opportunity to acquire a contemporary, high-end residence in one of North Down’s most sought-after locations, complete with stunning sea views.

Behind its traditional stone façade lies a striking contemporary interior, expertly reimagined by award-winning design consultancy Atelier Branco & Fairley—judges on NI House of the Year.

The open-plan living areas are flooded with natural light, with expansive windows and a terrace framing the ever-changing coastal panorama. Interiors combine warmth and sophistication, featuring clean architectural lines, bespoke joinery, and premium finishes throughout. The kitchen, equipped with a full range of high-end integrated appliances, quartz work surfaces, and a central island, provides the perfect setting for both daily living and entertaining while enjoying the coastal skies and passing maritime activity.

The well-proportioned bedrooms are all on the ground floor, with the principal suite boasting a dedicated dressing area with fitted wardrobes and a contemporary en-suite. A stylish family bathroom and an additional bedroom or home gym complete the accommodation.

Situated just minutes from scenic coastal walks, Bangor City Centre, the marina, and excellent transport links to Belfast, this home is ideally suited to professional couples, families, or those seeking a refined retirement retreat. Early viewing is highly recommended to fully appreciate everything this unique property has to offer.

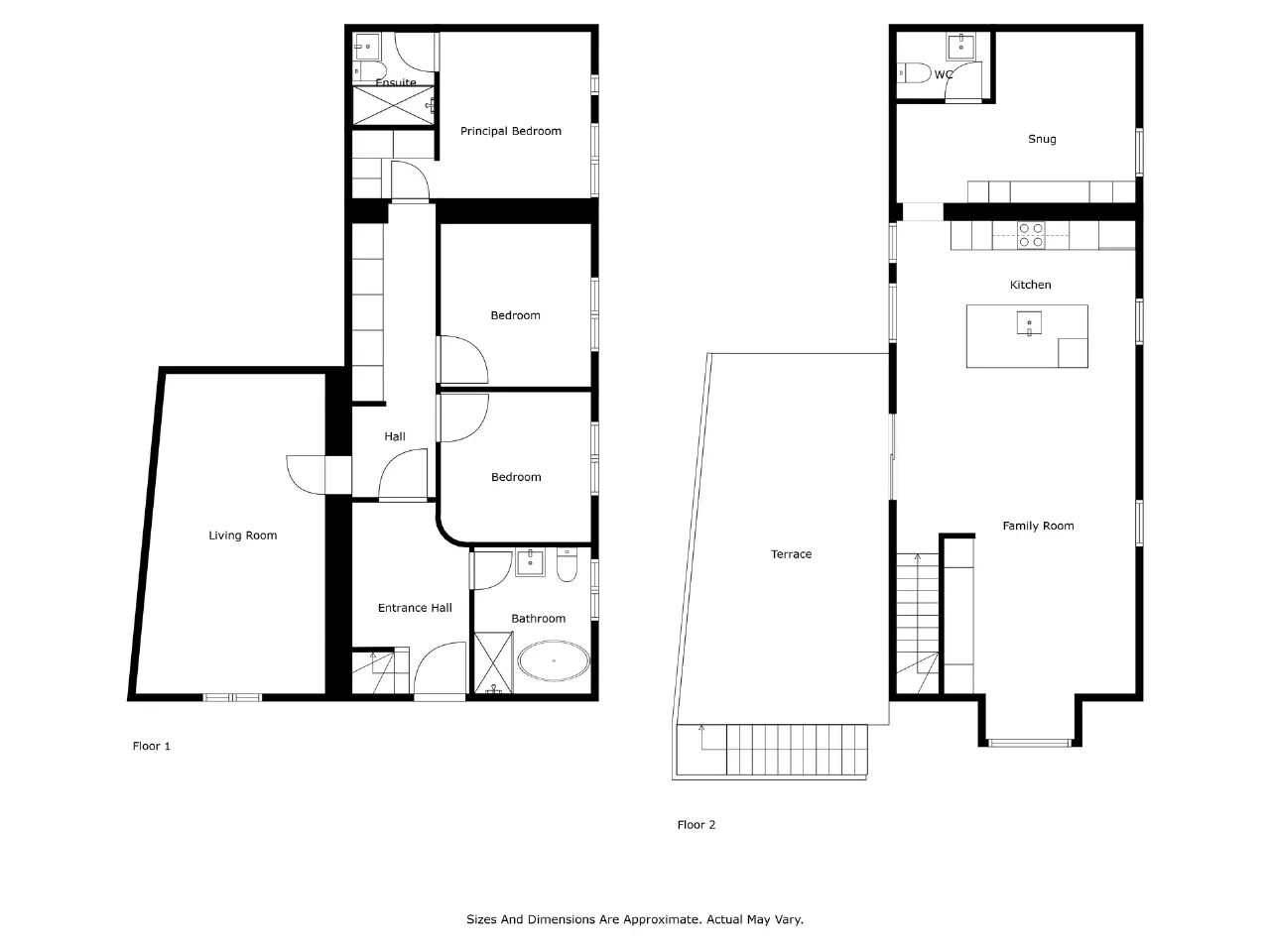
Rooms

GROUND FLOOR: Composite front door to:
ENTRANCE HALL: Ceramic tiled floor.
BATHROOM: White suite comprising Adamsez free standing bath with mixer tap and telephone hand shower, low flush wc, wash stand, walk-in shower cubicle with telephone hand shower and rain shower head, fully tiled walls, ceramic tiled floor, LED lighting, extractor fan, touch sensor mirror, brass fusion fittings.
REAR HALLWAY: Cloaks storage area incorporating laundry area, Hotpoint washing machine, 7kg Hoover heat pump tumble dryer, gas fired boiler.
GYM/BEDROOM 4: 22'0" x 11'0" (6.7m x 3.35m (At widest points)) Engineered Real Oak flooring.
BEDROOM 2: 10'0" x 10'0" (3.05m x 3.05m)
BEDROOM 3: 10'11" x 10'0" (3.33m x 3.05m)
PRINCIPAL BEDROOM: 11'0" x 10'0" (3.35m x 3.05m) Dressing area with range of built-in wardrobes.
ENSUITE SHOWER ROOM: Fully tiled shower cubicle with telephone hand shower and rain shower head, low flush wc, wash stand, touch sensor mirror, ceramic tiled floor, fully tiled walls, LED lighting, brass fusion fittings.
STAIRS FROM HALL TO::
FIRST FLOOR:
LARGE KITCHEN/LIVING/DINING: 31'0" x 16'0" (9.45m x 4.88m) Living Area Media wall with dark walnut akupanels, large picture window with panoramic lough view, Engineered Real Oak flooring, sliding doors to balcony sun terrace. Kitchen Luxury matt taupe kitchen with range of high and low level units, quartz work surfaces. Island with Franke Kubus single bowl gloss white ceramic undermounted sink, Quooker patinated brass fusion boiling water tap, quad pull out bins, integrated Bosch dishwasher, CDA wine cooler, Evoline stainless steel pop up socket.Neff touch control induction hob, extractor fan and canopy, Neff single slide'n' hide oven and combination Neff microwave / oven, Franke box flush canopy hood, integrated Bosch 70/30 fridge freezer, ultraslim LED lights below kitchen wall units. Engineered Real Oak flooring.
SNUG/CINEMA ROOM: 15'11" x 11'0" (4.85m x 3.35m) Media wall in dark walnut akupanels. Engineered Real Oak flooring.
CLOAKROOM: Low flush wc, wash hand stand, heated towel rail, ceramic tiled floor, fully tiled walls, extractor fan, brass fusion fittings, LED lighting, Velux window.
OUTSIDE: Private laneway leading to brick pavior driveway with parking for two cars. Garden area laid in lawns, greenhouse.
Contact Jennie McEwan Holywood +44 28 90428989 Email Enquiry

Location

Show Map
What's Near by?

Click below to see on map

Mortgage Calculator

Monthly Repayments Need Mortgage Advice?

Disclaimer: The following calculations act as a guide only, and are based on a typical repayment mortgage model. Financial decisions should not be made based on these calculations and accuracy is not guaranteed. Always seek professional advice before making any financial decisions.

Share Property

Request More Information

Requesting Info about...
The Barn, 6a, Maxwell Lane, Bangor, BT20 3RR The Barn, 6a, Maxwell Lane, Bangor, BT20 3RR

By registering your interest, you acknowledge our Privacy Policy and Terms & Conditions

Value My Property

Do you have a property to sell?
If you have a property to sell we can arrange for one of our experienced valuers to provide you with a no-obligation valuation.

Please complete the form opposite and a member of our team will get in touch to discuss your requirements.

Financial Services Enquiry

We can help with mortgages and insurance
John Minnis work with independent financial advisers that offer private mortgage advice and insurance options.

If you would like more information about what we can offer please complete the form opposite and a member of our team will get in touch to discuss your requirements.

Arrange a Viewing

Arrange a viewing for...
The Barn, 6a, Maxwell Lane, Bangor, BT20 3RR The Barn, 6a, Maxwell Lane, Bangor, BT20 3RR

Make an Offer

Make an Offer for...
The Barn, 6a, Maxwell Lane, Bangor, BT20 3RR HLW250596
Loading...