Javascript is vital for the advanced features in this website such as Property Search. Please enable or upgrade your browser

38 Craigleith Drive

Dundonald, Belfast, BT16 2QQ

Asking Price £155,000

38 Craigleith Drive

Dundonald, Belfast, BT16 2QQ

Asking Price £155,000
Status Agreed
Asking Price £155,000
Style Terraced House
Bedrooms 3
EPC Rating E46/C74 - Download
Stamp Duty £ / £*
Calculate Stamp Duty
*Higher amount applies when purchasing as buy to let
or as an additional property
Status Agreed
Asking Price £155,000
Style Terraced House
Bedrooms 3
EPC Rating E46/C74 - Download
Stamp Duty £ / £*
*Higher amount applies when purchasing as buy to let
or as an additional property

Key Features

Well presented mid terrace home
Bright lounge
Kitchen open plan to Dining Area
Three well proportioned bedrooms
Shower room in white suite
Gas Central Heating
uPVC Double Glazing
Cloaks under stairs
Paved enclosed rear courtyard
A short walk to shops and public transport routes

Description

This well-presented mid-terrace home offers bright, comfortable accommodation in a highly convenient location.

The property comprises a welcoming lounge, leading through to a kitchen open plan to dining area — ideal for everyday living and entertaining. Upstairs, there are three well-proportioned bedrooms along with a modern shower room finished in a white suite.

Further benefits include gas fired central heating, uPVC double glazing, and useful under-stairs cloak storage.

Externally, the property enjoys a paved, enclosed rear courtyard providing a low-maintenance outdoor space.

Situated just a short walk from local shops and public transport routes, this home will appeal to first-time buyers, investors, or those seeking convenient, low-maintenance living.

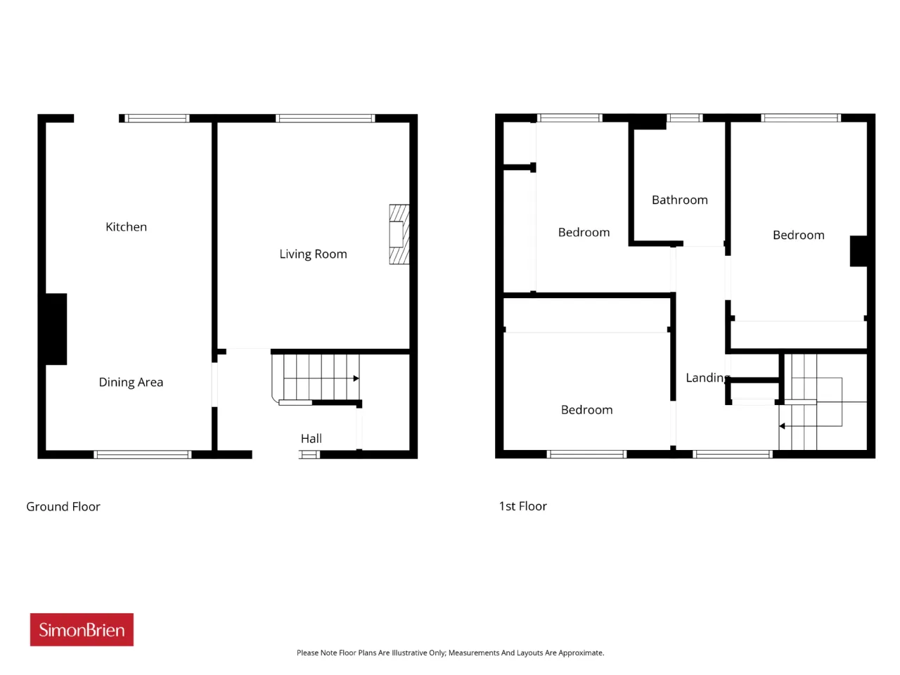
Rooms

GROUND FLOOR: Entrance Door.
ENTRANCE HALL: Wood laminate floor.
KITCHEN OPEN TO DINING AREA: 20'9" x 10'5" (6.32m x 3.18m) Full range of high and low level units, 4 ring ceramic hob and under oven, stainless steel extractor canopy over, glass surround, stainless steel sink unit with mixer taps, partly tiled walls, ceramic tiled floor.
LIVING ROOM: 14'3" x 11'0" (4.34m x 3.35m) Wood laminate floor.
FIRST FLOOR:
LANDING: Access to cloaks cupboard.
BEDROOM 1: 12'4" x 8'8" (3.76m x 2.64m To Wardrobes.) Built in wardrobes with mirrored sliding doors, wood laminate floor.
BEDROOM 2: 10'7" x 7'4" (3.23m x 2.24m To Wardrobes.) Built in wardrobes with mirrored sliding doors.
BEDROOM 3: 10'9" x 5'10" (3.28m x 1.78m To wardrobes.) Built in wardrobes with mirrored sliding doors, wood laminate floor.
SHOWER ROOM: Fully tiled shower cubicle with overhead rain shower, low flush WC, vanity sink unit, ceramic tiled floor, chrome towel radiator.
OUTSIDE: To the rear is a paved patio area with garden store, plumbed for washing machine and tumble dryer.
Contact Samuel Dickey East Belfast +44 28 90595555 Email Enquiry

Location

Show Map
What's Near by?

Click below to see on map

Mortgage Calculator

Monthly Repayments Need Mortgage Advice?

Disclaimer: The following calculations act as a guide only, and are based on a typical repayment mortgage model. Financial decisions should not be made based on these calculations and accuracy is not guaranteed. Always seek professional advice before making any financial decisions.

Share Property

Request More Information

Requesting Info about...
38 Craigleith Drive, Dundonald, Belfast, BT16 2QQ 38 Craigleith Drive, Dundonald, Belfast, BT16 2QQ

By registering your interest, you acknowledge our Privacy Policy and Terms & Conditions

Value My Property

Do you have a property to sell?
If you have a property to sell we can arrange for one of our experienced valuers to provide you with a no-obligation valuation.

Please complete the form opposite and a member of our team will get in touch to discuss your requirements.

Financial Services Enquiry

We can help with mortgages and insurance
John Minnis work with independent financial advisers that offer private mortgage advice and insurance options.

If you would like more information about what we can offer please complete the form opposite and a member of our team will get in touch to discuss your requirements.

Arrange a Viewing

Arrange a viewing for...
38 Craigleith Drive, Dundonald, Belfast, BT16 2QQ 38 Craigleith Drive, Dundonald, Belfast, BT16 2QQ

Make an Offer

Make an Offer for...
38 Craigleith Drive, Dundonald, Belfast, BT16 2QQ UNT260104
Loading...