Javascript is vital for the advanced features in this website such as Property Search. Please enable or upgrade your browser

Site 156 The Inver Belmont Hall

Belmont Road, Antirm, BT41

Asking Price £369,950

Site 156 The Inver Belmont Hall

Belmont Road, Antirm, BT41

Asking Price £369,950
Status Agreed
Asking Price £369,950
Style Detached
Bedrooms 4
Receptions 2
EPC Rating 0/0
Stamp Duty £ / £*
Calculate Stamp Duty
*Higher amount applies when purchasing as buy to let
or as an additional property
Status Agreed
Asking Price £369,950
Style Detached
Bedrooms 4
Receptions 2
EPC Rating 0/0 - Download
Stamp Duty £ / £*
*Higher amount applies when purchasing as buy to let
or as an additional property

Key Features

ABOUT YOUR NEW HOME
The Main Structure:
Your new home is crafted using traditional, proven cavity wall construction for durability and thermal efficiency. The external finish features a blend of brick and/or plaster render, while external timber elements are painted in a coordinated palette to enhance the architectural design. The roof is topped with dark, flat concrete tiles, crowned by a dry fixed ridge tile for a sleek, modern finish.
To complement the external trim, uPVC hexagonal guttering and matching square downpipes are installed.
Windows
Energy-saving, gas-filled double-glazed uPVC windows with locking latches provide excellent insulation and security. French doors or sliding patio doors, made of high-quality uPVC, bring natural light into your home, while a low-maintenance GRP front door and a uPVC rear door with double glazing complete the stylish exterior.
External Features:
Every detail of your outdoor space is carefully designed for immediate enjoyment. Front and rear gardens will feature a lush lawn unless otherwise specified in the site layout. The front lawn is professionally turfed for a polished look, while the back lawn may be either turfed or seeded, depending on the season, at the discretion of ACC Ltd.
Flat top garden edging, along with treated rail fencing, will be installed for a clean, contemporary border. Privacy is ensured between adjoining properties with 1.8m boarded fencing enclosing back gardens with matching gate.
Driveways, extending at least 10 metres or more, will be finished in smooth bitmac for a premium look. If your property includes a garage, it will be considered a parking space and may reduce the driveway length. Maximum parking to front elevations will be provided where possible.
A beautifully designed coloured pavia brick path will lead to both the front and rear entrances, ensuring level access to at least one external door. A spacious patio, with a minimum area of 5.75m², will be perfect for outdoor dining or relaxing. For your convenience, an outside tap is included as standard.
Interior finishes:
Your home’s interior exudes elegance and attention to detail. Contemporary 5” MDF skirting and 3” architrave, painted in crisp white, offer a refined trim throughout each room. Seamless MDF cillboard complement the windows, while solid ‘ladder’ style internal doors, finished in white with brushed chrome handles, complete the sophisticated look.
Homes with stairways feature striking ash newel posts and handrails, paired with sleek white painted square balustrades. Smooth plastered ceilings, combined with a white insulated uPVC loft access door, ensure a polished and cohesive interior. For optimal ventilation, extractor fans are installed in the kitchen, bathroom, ensuite (where applicable), and WC. Water-resistant light fittings are thoughtfully placed in bathrooms and ensuites for added safety.
Heating & Energy Efficiency:
Your comfort and energy savings are our priority. High-performance thermal insulation is integrated into walls, roof spaces, and all habitable areas, significantly reducing energy consumption.
Each home is fitted with an electric stove complete with a dummy flue, thoughtfully designed to replicate the charm of a traditional solid fuel stove. This feature brings the timeless aesthetic and cosy focal point of a classic stove, while also providing the practical benefit of efficient, controllable heat—creating a warm and welcoming atmosphere without the maintenance of a real fire.
The central heating system is powered by mains gas and features a separate boiler. Radiators are installed in all main rooms, and the system is designed to be programme-controlled for optimal efficiency, providing a separate hot water supply. Additionally, your home benefits from a pressurised water system, ensuring quick, consistent, water flow.
For your Peace of Mind:
An intruder alarm is supplied and installed by a NACOSS & NSI approved company. Front and back doors have multi lock systems and all ground floor windows are lockable. Electrically operated smoke and carbon monoxide detectors are installed. For your convenience, external lights are fitted at both the front and back door. The front door will have a door bell.
Renewable Energy Solutions:
To further enhance energy efficiency, an integrated in-roof Solar PV system is included. This system harnesses the sun’s power, transferring surplus electricity back to the grid. Please note, not all energy suppliers will compensate for this export, and you may need to set up a renewables account with your energy provider. The quantity and placement of Solar PV panels are carefully designed at the discretion of ACC Ltd, ensuring balanced performance. Consult with our sales team for specific details.
Peace of Mind:
For your security and peace of mind, an intruder alarm system is installed. Both the front and back doors are equipped with advanced multi-lock systems, while all ground-floor windows are fitted with secure locking mechanisms. Smoke, heat, and carbon monoxide detectors, powered by electricity, are standard in every home.
External lights are thoughtfully installed at both the front and rear doors, enhancing both safety and aesthetic appeal. A modern smart doorbell with video and intercom functionality ensures you can monitor visitors from anywhere via an app.
Every property is registered with the National House Building Council (NHBC) 10 Year warranty and insurance scheme known as Buildmark, the first 2 years of which are directly with Antrim Construction and backed by NHBCs Resolution Service. The NHBC Buildmark cover also provides deposit protection from the point of exchange, and structural defects insurance in years 3-10. More details are available on our website Useful Links page.
________________________________________
Platinum Turnkey Specification
Did you know you could personalize your new home even before you move in?
We offer you the exciting opportunity to design and tailor your living space to reflect your individual style and needs. From luxurious flooring and bespoke kitchens to the precise positioning of power sockets and an array of premium finishes, the possibilities are endless. Our goal is to provide you with a truly blank canvas—one where your creative vision can come to life.
As we construct your new home, we build in a variety of customization choices and upgrades, giving you the freedom to select from an extensive range of features. The earlier you reserve, the more options you'll have to create a home that is uniquely yours.
Our expert team will guide you through the available selections and bespoke options for your chosen property, ensuring that your new home is a perfect reflection of your personal taste from the moment you move in.
Practical Kitchen Design: Beautifully crafted kitchens with premium doors, elegant stone worktops and sophisticated handles tailored to your personal taste, from our carefully selected supplier. Soft-closing drawers and doors come as standard for a seamless and quiet touch. The finish includes a coordinated upstand to match your chosen worktop, complemented by a stunning glass splashback above the hob. Additional bespoke finishes and enhancements are available to create a truly unique space.
Quality Appliances: No kitchen is complete without appliances. We supply and install a sleek 4-ring gas hob, a high-performance single electric oven, and a chic curved glass extractor canopy. Instant boiling water is available from the Quooker tap. Your kitchen will also feature integrated modern appliances, including a 70/30 fridge freezer, dishwasher, microwave oven, washing machine, and a tumble dryer. For select properties, a modern combi washer/dryer will be fitted to optimize storage space. Upgrade options, such as advanced appliance brands or smart features, are available for those seeking the ultimate in convenience and innovation.
Elegant Bathroom & Ensuite Spaces: Your bathrooms, WCs, and ensuites (where applicable) are designed with contemporary flair, featuring luxurious white sanitary ware and sophisticated chrome-finished fixtures. Indulge in the warmth of a chrome heated towel radiator in both the main bathroom and ensuite. Relax in stylish shower cubicles with glass screens, or, where space is at a premium, enjoy a thermostatically controlled shower over a sleek bathtub. For homes with multiple showers (3 or more), additional electric shower options are available to ensure constant comfort. Personalise your bathroom experience further with an array of floor tiles and finishes.
Custom Flooring Options: Tailor your home’s flooring with our curated selection of high-quality ceramic tiles, available for hallways, kitchens, dining, garden rooms, utilities, bathrooms, and ensuites/ WCs. For properties with an internal porch and hallway, we offer ceramic tiles for the porch and luxurious carpet for the hallway. Consult with our expert supplier in their modern showroom to explore additional options, such as porcelain or natural stone flooring, for a refined and sophisticated look.
Sophisticated Wall Finishes: Extend your customization to bath and sink splashbacks in the bathroom, ensuite, and WC/cloaks with a range of modern, decorative, branded, multi-panel finishes. Select from various styles and designs to complement your interior aesthetic. Shower cubicles complete with low profile trays also feature your choice of low-maintenance, stylish multi-panels, ensuring your home is as functional as it is beautiful.
Luxurious Carpeting: Experience comfort underfoot with a choice of high-quality carpets, complete with underlay, available for your lounge, stairs, landing, and all bedrooms. Opt for plush textures and rich hues to match your personal style, or explore upgrade options for bespoke carpets.
Thoughtful Power Solutions: Enjoy convenience with a generous provision of power points throughout your home, strategically positioned to suit your individual needs. Our standard package includes elegant downlighting in both the lounge and kitchen. USB charging sockets are thoughtfully installed in all bedrooms for easy device charging.
Electric Vehicle Charging: Our new homes will be equipped with pre-installed cabling to facilitate potential electric vehicle (EV) connections, enabling "EV ready." This forward-thinking infrastructure allows homeowners to add charging stations as needed, subject to their service provider and vehicle type, providing a seamless transition to electric vehicle use and supporting a sustainable, eco-friendly lifestyle.
Cutting-Edge Connectivity: Your new home is equipped with ultra-fast fibre to the premises (FTTP) technology, offering lightning-speed broadband access (service provider contract required). Additionally, we install ethernet points in the principal bedroom and one other room of your choice (subject to the build stage at the time of reservation), perfect for home offices or entertainment hubs. Upgrade options for smart home integration or additional data points are also available.
Finishing Touches: To complete the luxurious look of your new home, ceilings will be elegantly painted in crisp white, while walls will be finished in one neutral colour.
Additional options may be considered but we can only incorporate them into the property if a binding contract is in existence between all of us at the requisite stage of construction.
This specification is for guidance only and may be subject to variation. Although every care has been taken to ensure the accuracy of all information given, these contents do not form part of or constitute a representation, warranty, or part of, any contract. The right is reserved to alter or amend any details.
________________________________________
Finally, keeping it all ship shape
Landscaped areas have been incorporated to compliment your new home and these areas will require continuing management in the future in order to maintain the quality environment in which you live. For this purpose, Antrim Construction Company Limited has entered into an agreement with a management company. Residents will contribute to this service. The first payment will be made to Antrim Construction Company Limited at the same time as your balance purchase money is paid.
________________________________________
And now for the 'small' print - it really is the same size as the rest because we want you to be fully informed throughout the buying process:
For full terms and conditions please refer to the PDF attachment titled 'Terms and Conditions'
and that's it for now!
________________________________________
Please do not hesitate to contact our sales team if you would like more information

Description

BELMONT HALL - A NATURAL PLACE TO LIVE
Imagine living in true natural beauty a mere 30 minutes from Belfast, just beyond Antrim town. With stillness, flowing water and lush green landscapes on your doorstep, Belmont Hall is a new neighbourhood development that combines excellent design in a perfect natural location. This environmentally sensitive neighbourhood offers immediate access to a network of parks, playing fields, and walks, all within a short distance of the Six Mile Water. Three separate entrances will service the development with a carefully crafted design of private cul-de-sacs and landscaped pedestrian pathways creating a relaxing, natural, environment. Schools, leisure facilities and shopping, a hospital and the international airport are all in close proximity. Stay connected with the nearby bus and rail links and the main arterial routes from South Antrim to the city.

Choose a lifestyle that feeds your soul. Amble along the Six Mile Water River from Antrim’s hidden gardens, past town and castles into a neighbourhood that blends perfectly into the surrounding area. A place with a great history where you can build a great future. An eclectic mix of established local traders and major store brands are just a stone’s throw away with every amenity you will need, right here on your door step. Whether its sport, leisure, or simply enjoying the view, Belmont Hall offers river living alive with the magic of nature and raw beauty.

Rooms

ENTRANCE HALL:
LOUNGE: 16'4" x 13'0" (4.97m x 3.96m) Max
KITCHEN/DINING: 20'3" x 12'0" (6.17m x 3.66m)
UTILITY ROOM: 10'11" x 6'3" (3.34m x 1.90m)
WC: 6'7" x 3'7" (2.01m x 1.09m)
GARDEN ROOM: 10'4" x 10'11" (3.15m x 3.34m)
GARAGE: 17'5" x 10'11" (5.30m x 3.34m)
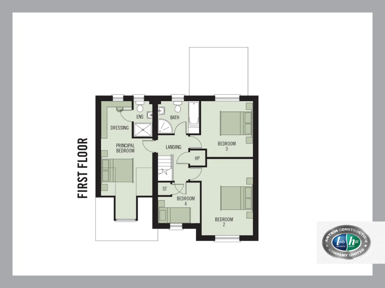
FIRST FLOOR:
BEDROOM 1: 11'1" x 10'11" (3.38m x 3.34m) Plus Bay
DRESSING AREA: 7'11" x 6'7" (2.42m x 2m)
ENSUITE: 7'7" x 4'0" (2.32m x 1.22m)
BEDROOM 2: 16'4" x 10'11" (4.97m x 3.34m) Max
BEDROOM 3: 11'11" x 11'1" (3.64m x 3.37m) Max
BEDROOM 4: 8'11" x 8'9" (2.73m x 2.66m) Max
BATHROOM: 8'10" x 6'11" (2.68m x 2.11m)
Contact Gordon Black South Belfast +44 28 90668888 Email Enquiry
Contact Jonathan Killen South Belfast +44 28 90685311 Email Enquiry

Location

Show Map
What's Near by?

Click below to see on map

Mortgage Calculator

Monthly Repayments Need Mortgage Advice?

Disclaimer: The following calculations act as a guide only, and are based on a typical repayment mortgage model. Financial decisions should not be made based on these calculations and accuracy is not guaranteed. Always seek professional advice before making any financial decisions.

Share Property

Request More Information

Requesting Info about...
Site 156 The Inver Belmont Hall, Belmont Road, Antirm, BT41 Site 156 The Inver  Belmont Hall, Belmont Road, Antirm, BT41

By registering your interest, you acknowledge our Privacy Policy and Terms & Conditions

Value My Property

Do you have a property to sell?
If you have a property to sell we can arrange for one of our experienced valuers to provide you with a no-obligation valuation.

Please complete the form opposite and a member of our team will get in touch to discuss your requirements.

Financial Services Enquiry

We can help with mortgages and insurance
John Minnis work with independent financial advisers that offer private mortgage advice and insurance options.

If you would like more information about what we can offer please complete the form opposite and a member of our team will get in touch to discuss your requirements.

Arrange a Viewing

Arrange a viewing for...
Site 156 The Inver Belmont Hall, Belmont Road, Antirm, BT41 Site 156 The Inver  Belmont Hall, Belmont Road, Antirm, BT41

Make an Offer

Make an Offer for...
Site 156 The Inver Belmont Hall, Belmont Road, Antirm, BT41 LBR260034
Loading...