Javascript is vital for the advanced features in this website such as Property Search. Please enable or upgrade your browser

Auburn House, 126

High Street, Holywood, BT18 9HW

Offers Over £299,950

Auburn House, 126

High Street, Holywood, BT18 9HW

Offers Over £299,950
Status For Sale
Offers Over £299,950
EPC Rating 0/0
Stamp Duty £ / £*
Calculate Stamp Duty
*Higher amount applies when purchasing as buy to let
or as an additional property
Status For Sale
Offers Over £299,950
EPC Rating 0/0 - Download
Stamp Duty £ / £*
*Higher amount applies when purchasing as buy to let
or as an additional property

Key Features

Prime Holywood town centre location
Excellent commercial building suitable for:
- Day Nursery
- Offices
- Medical consulting rooms
Private off street parking for several cars in front

Description

An excellent opportunity to approve a superbly located office building in the heart of Holywood town centre.

The property has recently been used as Day Nursery however would be suitable for a variety of uses involving professional offices, or individual consulting rooms.

The property has a large forecourt area to the front with parking for several cars.

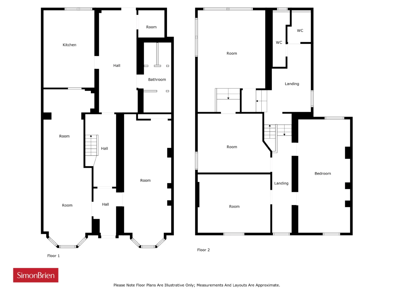
Rooms

GROUND FLOOR:
ENTRANCE HALL: PVC entrance door.
INNER HALL: Stairway to First Floor.
ROOM 1 (RHS): (7.92m (into bay window) x 3.15m) Built in cupboard with shelving.
ROOM 2 (LHS): (10m (into bay window) x 3m)
STORE ROOM (REAR): 20'6" x 7'3" (6.25m x 2.2m) Store off. PVC rear door.
TOILETS: 14'5" x 5'1" (4.4m x 1.55m)
KITCHEN: 15'6" x 10'2" (4.72m x 3.1m) Fitted with a good range of high and low level units, stainless steel 1.5 bowel sink unit with mixer taps, built in hob and oven, plumbed for washing machine.
FIRST FLOOR:
ROOM 1 (FRONT RIGHT): 22'10" x 10'3" (6.96m x 3.12m)
ROOM 2 (FRONT LEFT): 15'0" x 11'10" (4.57m x 3.6m)
ROOM 3 (REAR LEFT): 15'0" x 12'0" (4.57m x 3.66m) Double doors to:
ROOM 4 (REAR): 20'8" x 14'6" (6.3m x 4.42m)
RETURN LANDING: Two WC's.
OUTSIDE: Forecourt /Parking to front. Small enclosed yard to rear.
Contact Simon Brien Holywood 028 90428989 Email Enquiry

Location

Show Map
What's Near by?

Click below to see on map

Mortgage Calculator

Monthly Repayments Need Mortgage Advice?

Disclaimer: The following calculations act as a guide only, and are based on a typical repayment mortgage model. Financial decisions should not be made based on these calculations and accuracy is not guaranteed. Always seek professional advice before making any financial decisions.

Request More Information

Requesting Info about...
Auburn House, 126, High Street, Holywood, BT18 9HW Auburn House, 126, High Street, Holywood, BT18 9HW

By registering your interest, you acknowledge our Privacy Policy and Terms & Conditions

Value My Property

Do you have a property to sell?
If you have a property to sell we can arrange for one of our experienced valuers to provide you with a no-obligation valuation.

Please complete the form opposite and a member of our team will get in touch to discuss your requirements.

Financial Services Enquiry

We can help with mortgages and insurance
John Minnis work with independent financial advisers that offer private mortgage advice and insurance options.

If you would like more information about what we can offer please complete the form opposite and a member of our team will get in touch to discuss your requirements.

Arrange a Viewing

Arrange a viewing for...
Auburn House, 126, High Street, Holywood, BT18 9HW Auburn House, 126, High Street, Holywood, BT18 9HW

Make an Offer

Make an Offer for...
Auburn House, 126, High Street, Holywood, BT18 9HW HLW250370
Loading...