Javascript is vital for the advanced features in this website such as Property Search. Please enable or upgrade your browser

6 Hilltown Road

Mayobridge, Newry, BT34 2HQ

Guide Price £90,000

6 Hilltown Road

Mayobridge, Newry, BT34 2HQ

Guide Price £90,000
Status For Sale
Guide Price £90,000
EPC Rating 0/0
Stamp Duty £ / £*
Calculate Stamp Duty
*Higher amount applies when purchasing as buy to let
or as an additional property
Status For Sale
Guide Price £90,000
EPC Rating 0/0 - Download
Stamp Duty £ / £*
*Higher amount applies when purchasing as buy to let
or as an additional property

Description

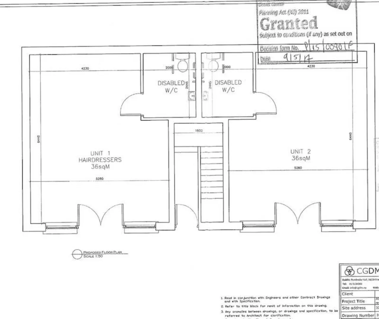
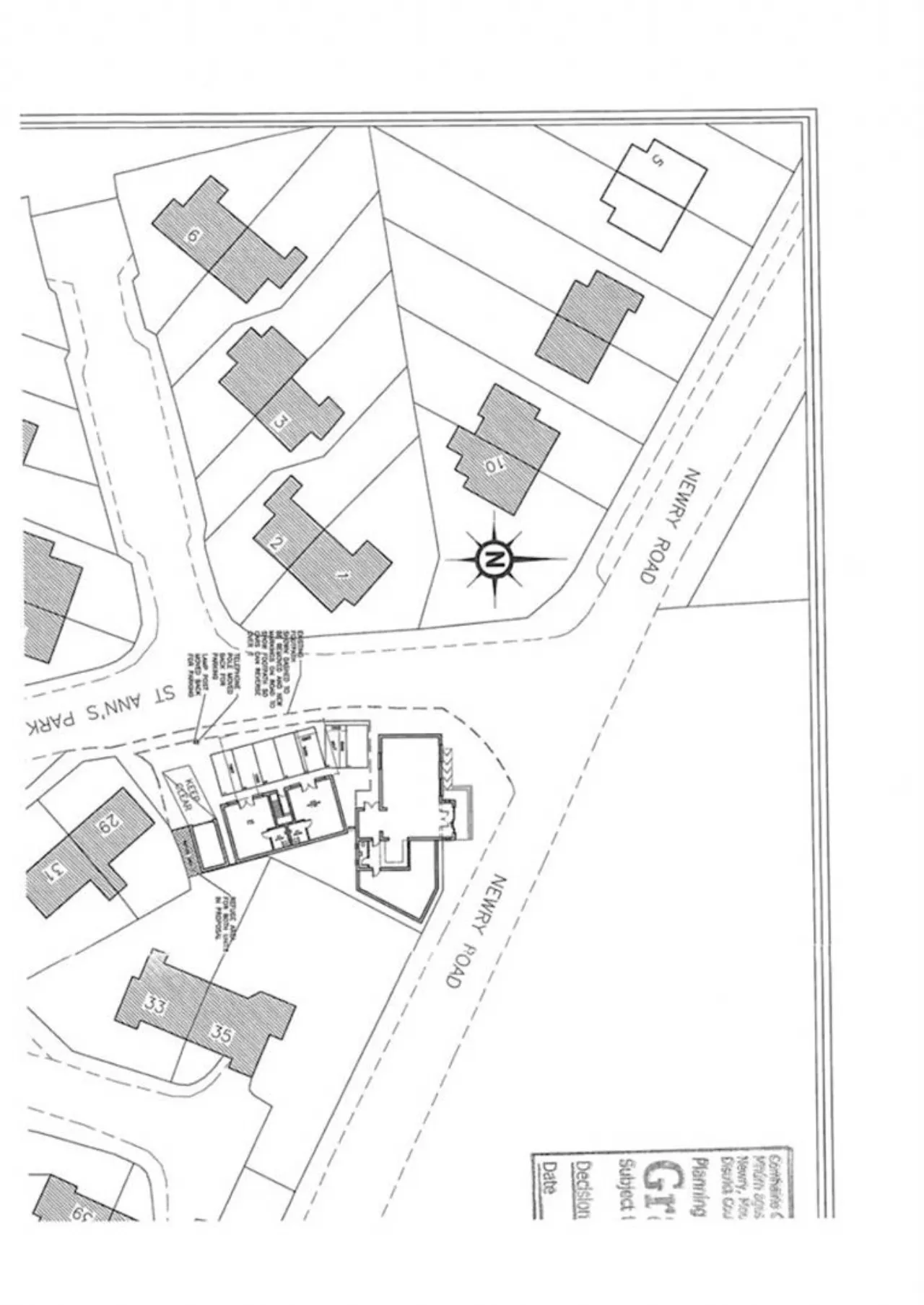
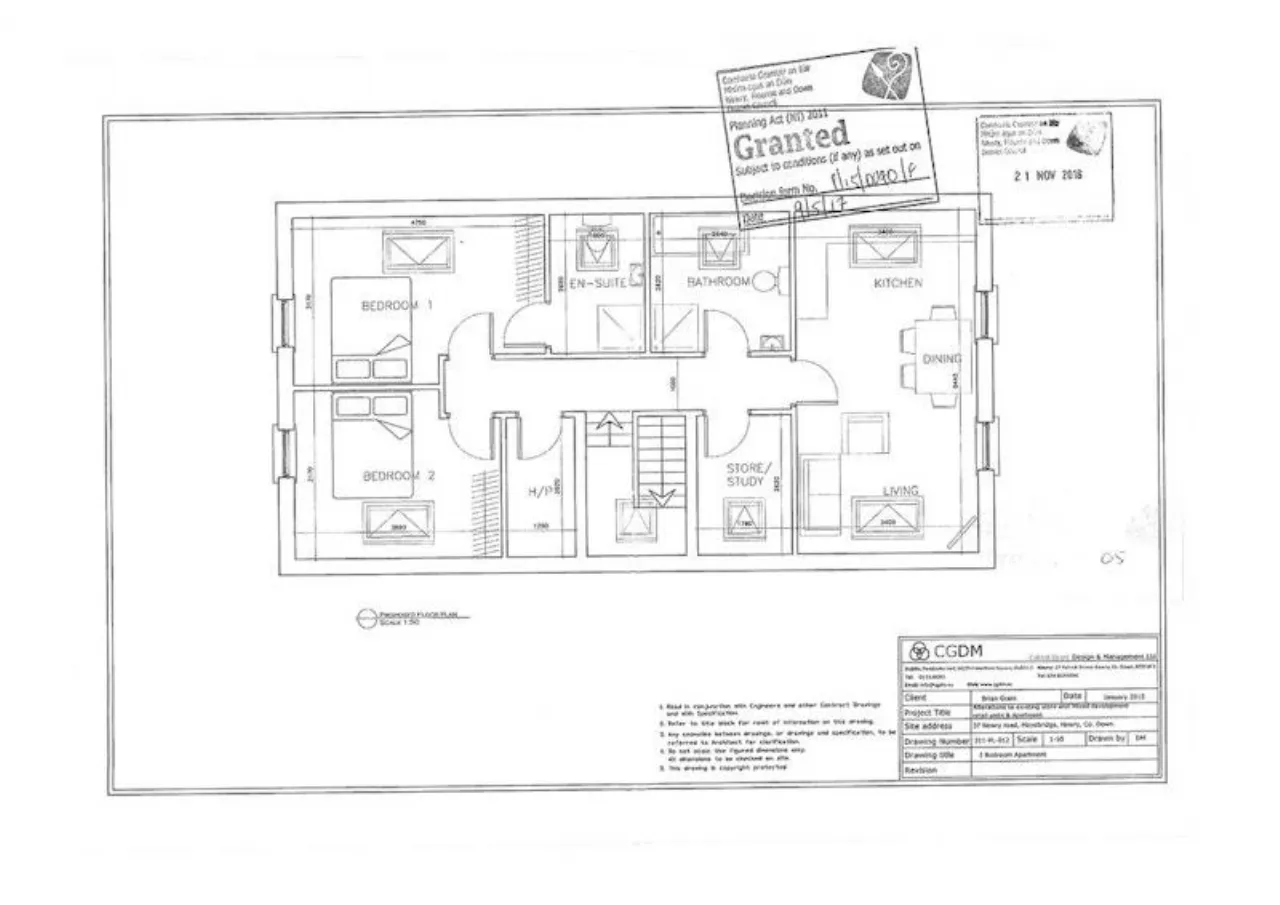
Located in the heart of the idyllic village of Mayobridge, this re-development opportunity comes complete with full planning permission for the erection of 2 ground floor retail units and a 2 bedroom first floor apartment.

Planning permission was granted under Planning Application P/2015/0090/F on 9th May 2017. On completion each of the retail units will extend to circa 387sq.ft whilst the the apartment will comprise a Kitchen/Living Area, Bathroom, 2 Bedrooms (1 en-suite) and home office. (It should be noted that the end garage does not form part of the re-development plot).

Village centre re-development opportunity with full planning permission for 2 No. Retail Units and first floor two bedroom apartment.
Contact Garrett O'Hare Warrenpoint 028 4177 3777 Email Enquiry

Location

Show Map
What's Near by?

Click below to see on map

Mortgage Calculator

Monthly Repayments Need Mortgage Advice?

Disclaimer: The following calculations act as a guide only, and are based on a typical repayment mortgage model. Financial decisions should not be made based on these calculations and accuracy is not guaranteed. Always seek professional advice before making any financial decisions.

Request More Information

Requesting Info about...
6 Hilltown Road, Mayobridge, Newry, BT34 2HQ 6 Hilltown Road, Mayobridge, Newry, BT34 2HQ

By registering your interest, you acknowledge our Privacy Policy and Terms & Conditions

Value My Property

Do you have a property to sell?
If you have a property to sell we can arrange for one of our experienced valuers to provide you with a no-obligation valuation.

Please complete the form opposite and a member of our team will get in touch to discuss your requirements.

Financial Services Enquiry

We can help with mortgages and insurance
John Minnis work with independent financial advisers that offer private mortgage advice and insurance options.

If you would like more information about what we can offer please complete the form opposite and a member of our team will get in touch to discuss your requirements.

Arrange a Viewing

Arrange a viewing for...
6 Hilltown Road, Mayobridge, Newry, BT34 2HQ 6 Hilltown Road, Mayobridge, Newry, BT34 2HQ

Make an Offer

Make an Offer for...
6 Hilltown Road, Mayobridge, Newry, BT34 2HQ WPT220029